Login

 
Appartement 1e Etage
Schoenerstraat 170, Den Helder
Huurprijs: € 490,61 per maand
Overgebleven tijd om te reageren
5 dagen
Aantal reacties
48
Uw positie
Onbekend
Type
Appartement 1e Etage
Slaapkamers
3
Bouwjaar
1963
Oppervlakte
77.2 m2
housePhoto
housePhoto
Woningkenmerken
Balkon
Berging extern
Verwarming & energie
Elektrisch koken
Extra’s
Intercom
Thermostatische douchekraan

Beschrijving

Een intakegesprek maakt onderdeel uit van de toewijzingsprocedure.

Advertentie
Advertentienummer: 2025120915
Methode Toewijzen: Zoekrecht
Verwachte verhuurdatum: 16 januari 2026
Reageren t/m: 15 december 2025
Corporatie:
Details
Betreft: Appartement 1e Etage
Type woning: Appartement 1e Etage
Energielabel: Energieklasse G
Kosten
Huurprijs (netto): € 476,32
Servicekosten: € 14,29
Huurprijs (bruto): € 490,61
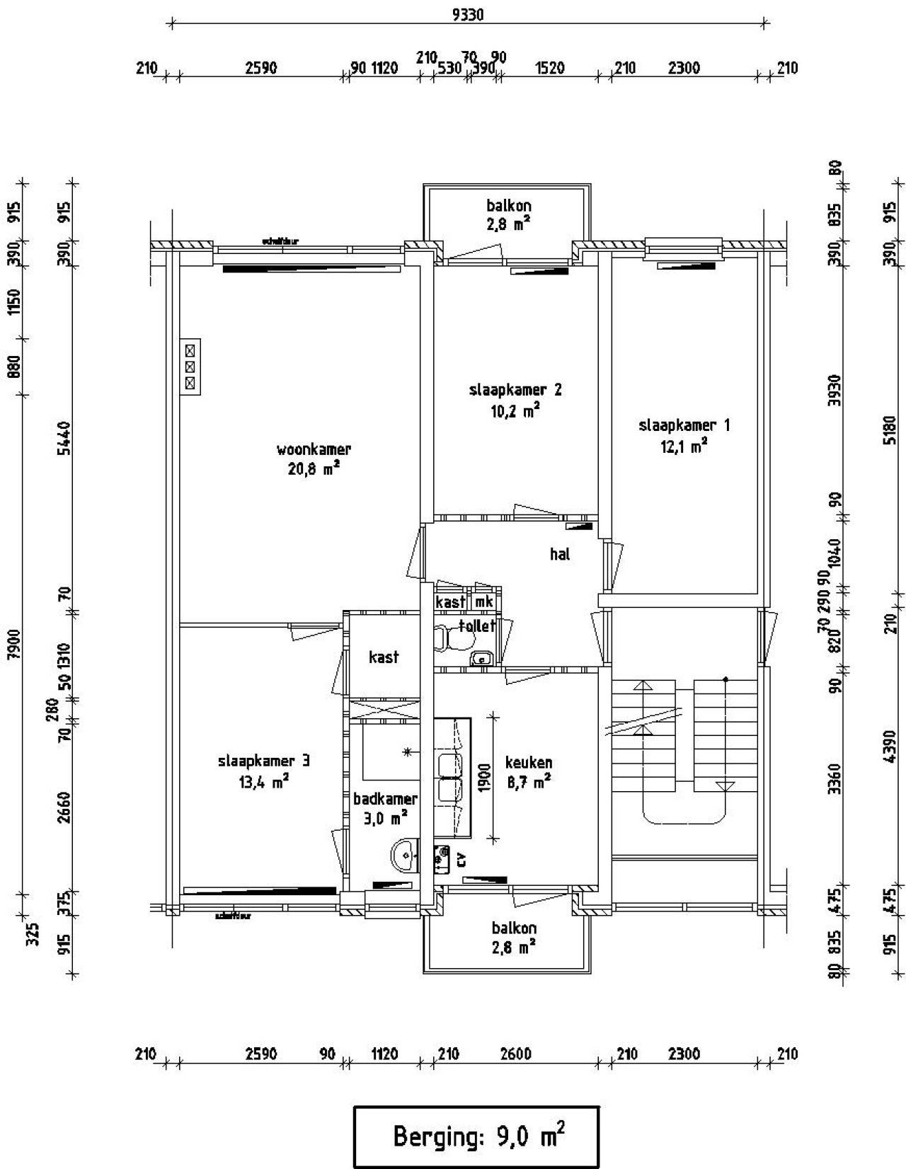
Indeling
Slaapkamer-1: 12.10 m2
Slaapkamer-2: 10.20 m2
Woonkamer-1: 20.80 m2
Keuken-1: 8.70 m2
Badkamer-1: 3.00 m2
Berging-1: 9.00 m2
Slaapkamer-3: 13.40 m2

Totale oppervlakte: 77.20 m2


Elektrisch koken 

Elektrisch koken van toepassing: koken met gas niet mogelijk.


Aanvragen inkomensverklaring

Indien u in aanmerking komt voor een huurwoning heeft u een inkomensverklaring nodig van de Belastingdienst van uzelf en indien van toepassing van uw partner over het jaar 2024/2025 of een definitieve of voorlopig aanslagbiljet over het jaar 2024/2025.

Om teleurstelling bij toewijzing te voorkomen adviseren wij u in verband met de levertijd nu al deze inkomensverklaring aan te vragen bij de Belastingdienst tel. 0800-0543. Bij toewijzing wordt geen uitstel verleend voor het aanvragen van een inkomensverklaring.


 
 
REAGEREN
U moet eerst inloggen om te kunnen reageren. Heeft u nog geen account?
Schrijf u dan snel in.