Login

 
Appartement 1e Etage
Duinroosstraat 353, Den Helder
Huurprijs: € 668,51 per maand
Overgebleven tijd om te reageren
3 dagen
Aantal reacties
140
Uw positie
Onbekend
Type
Appartement 1e Etage
Slaapkamers
2
Bouwjaar
1962
Oppervlakte
58 m2
housePhoto
housePhoto
Woningkenmerken
Balkon
Berging extern
Verwarming & energie
Elektrisch koken
Zonnepanelen
CV combiketel
Extra’s
Videofoon
Thermostatische douchekraan

Beschrijving

Advertentie
Advertentienummer: 2025112419
Methode Toewijzen: Zoekrecht
Verwachte verhuurdatum: 29 december 2025
Reageren t/m: 30 november 2025
Corporatie:
Details
Betreft: Appartement 1e Etage
Type woning: Appartement 1e Etage
Energielabel: Energieklasse B
Kosten
Huurprijs (netto): € 638,47
Servicekosten: € 30,04
Huurprijs (bruto): € 668,51
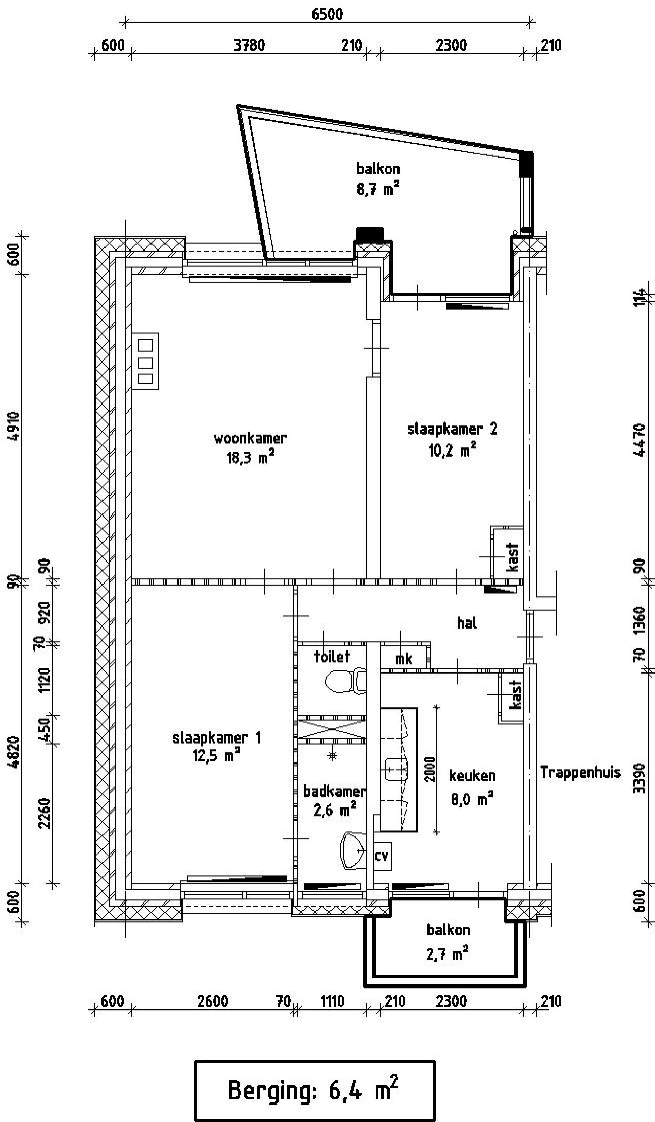
Indeling
Slaapkamer-1: 12.50 m2
Slaapkamer-2: 10.20 m2
Woonkamer-1: 18.30 m2
Keuken-1: 8.00 m2
Badkamer-1: 2.60 m2
Berging-1: 6.40 m2

Totale oppervlakte: 58.00 m2


Elektrisch koken 

Elektrisch koken van toepassing: koken met gas niet mogelijk.


Zonnepanelen

Deze woning is voorzien van zonnepanelen.


Aanvragen inkomensverklaring

Indien u in aanmerking komt voor een huurwoning heeft u een inkomensverklaring nodig van de Belastingdienst van uzelf en indien van toepassing van uw partner over het jaar 2024/2025 of een definitieve of voorlopig aanslagbiljet over het jaar 2024/2025.

Om teleurstelling bij toewijzing te voorkomen adviseren wij u in verband met de levertijd nu al deze inkomensverklaring aan te vragen bij de Belastingdienst tel. 0800-0543. Bij toewijzing wordt geen uitstel verleend voor het aanvragen van een inkomensverklaring.


 
 
REAGEREN
U moet eerst inloggen om te kunnen reageren. Heeft u nog geen account?
Schrijf u dan snel in.