Login

 
Eengezinswoning
Gouwestraat 38, Den Helder
Huurprijs: € 713,03 per maand
Overgebleven tijd om te reageren
4 dagen
Aantal reacties
332
Uw positie
Onbekend
Type
Eengezinswoning
Slaapkamers
3
Bouwjaar
1958
Oppervlakte
62.6 m2
housePhoto
housePhoto
housePhoto
housePhoto
Woningkenmerken
Berging extern
Open keuken
Tuin
Verwarming & energie
Elektrisch koken
Zonnepanelen
CV combiketel
Extra’s
Vrijhangend toilet
Thermostatische douchekraan
Vlizotrap naar bergzolder

Beschrijving

Advertentie
Advertentienummer: 2025122205
Methode Toewijzen: Zoekrecht
Verwachte verhuurdatum: 16 februari 2026
Reageren t/m: 28 december 2025
Corporatie:
Details
Betreft: Eengezinswoning
Type woning: Eengezinswoning
Energielabel: Energieklasse B
Kosten
Huurprijs (netto): € 705,22
Servicekosten: € 7,81
Huurprijs (bruto): € 713,03
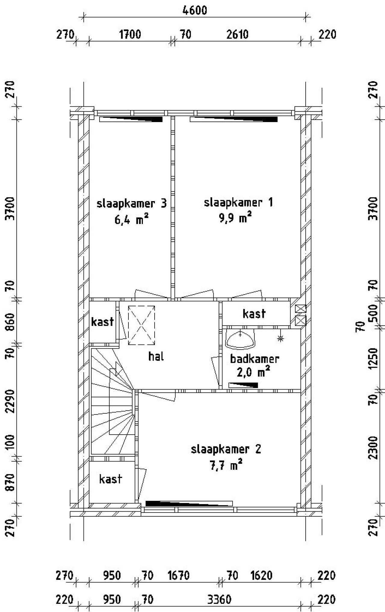
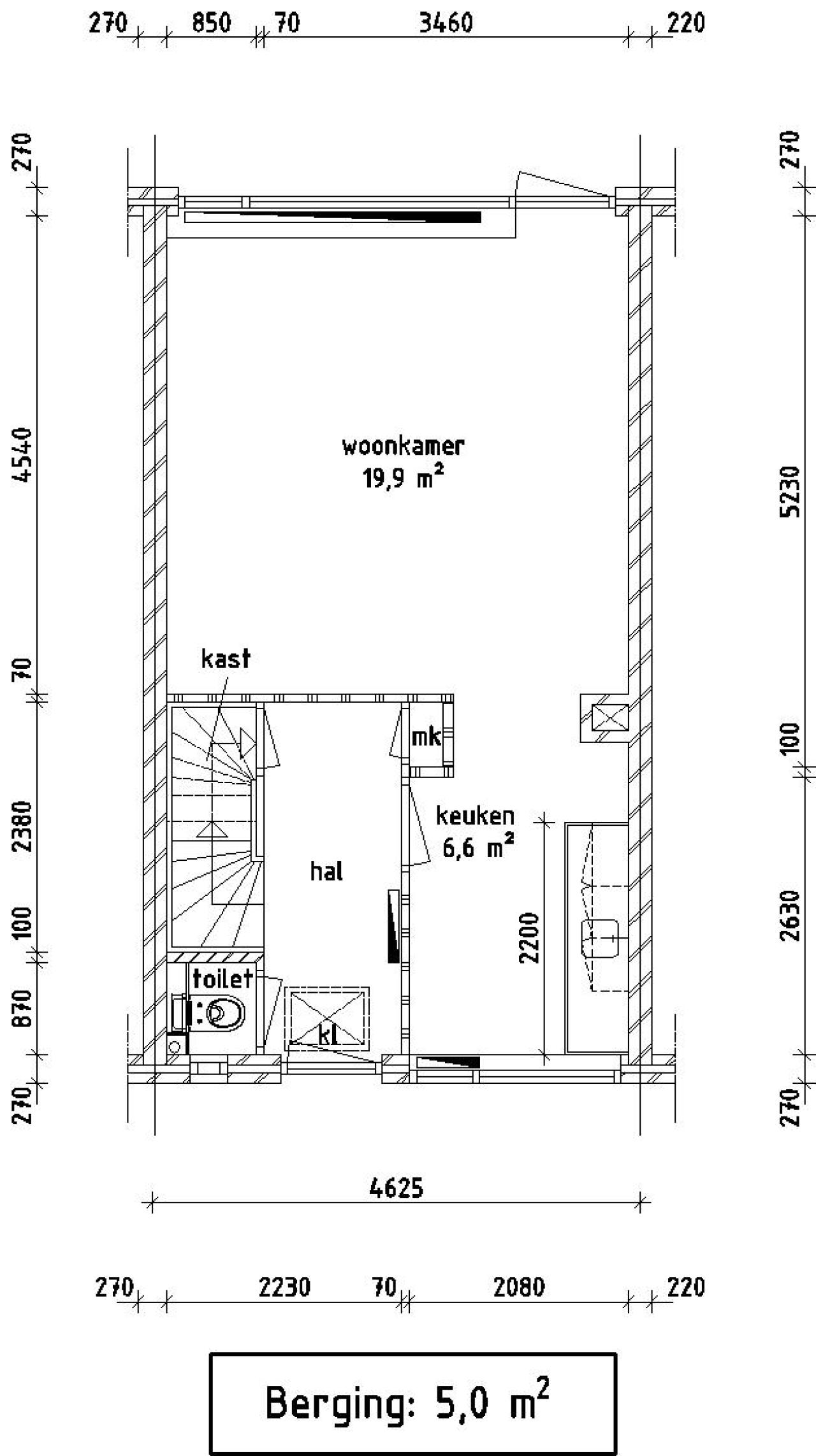
Indeling
Slaapkamer-1: 9.90 m2
Slaapkamer-2: 7.70 m2
Woonkamer-1: 19.90 m2
Keuken-1: 6.60 m2
Badkamer-1: 2.00 m2
Berging-1: 5.00 m2
Zolder-1: 5.10 m2
Slaapkamer-3: 6.40 m2

Totale oppervlakte: 62.60 m2


Elektrisch koken 

Elektrisch koken van toepassing: koken met gas niet mogelijk.


Zonnepanelen

Deze woning is voorzien van zonnepanelen.


Aanvragen inkomensverklaring

Indien u in aanmerking komt voor een huurwoning heeft u een inkomensverklaring nodig van de Belastingdienst van uzelf en indien van toepassing van uw partner over het jaar 2024/2025 of een definitieve of voorlopig aanslagbiljet over het jaar 2024/2025.

Om teleurstelling bij toewijzing te voorkomen adviseren wij u in verband met de levertijd nu al deze inkomensverklaring aan te vragen bij de Belastingdienst tel. 0800-0543. Bij toewijzing wordt geen uitstel verleend voor het aanvragen van een inkomensverklaring.


 
 
REAGEREN
U moet eerst inloggen om te kunnen reageren. Heeft u nog geen account?
Schrijf u dan snel in.