Login

 
Eengezinswoning
Heer Willem van Egmondstraat 27, Den Helder
Huurprijs: € 739,74 per maand
Overgebleven tijd om te reageren
5 dagen
Aantal reacties
31
Uw positie
Onbekend
Type
Eengezinswoning
Slaapkamers
4
Bouwjaar
1966
Oppervlakte
80.6 m2
housePhoto
housePhoto
housePhoto

Voorwaarden en/of vereisten

Aantal personen in uw huishouden
Voor deze woning geldt een minimale of maximale huishoudgrootte. Voor uw huishoudgrootte tellen u, uw eventuele partner, uw eventuele kinderen, en eventuele andere inwonende bewoners mee.
Minimaal 3 person(en)
Woningkenmerken
Berging extern
Tuin
Verwarming & energie
Elektrisch koken
Zonnepanelen
CV combiketel
Extra’s
Thermostatische douchekraan

Beschrijving

Advertentie
Advertentienummer: 2025111313
Methode Toewijzen: Zoekrecht
Verwachte verhuurdatum: 27 januari 2026
Reageren t/m: 19 november 2025
Corporatie:
Details
Betreft: Eengezinswoning
Type woning: Eengezinswoning
Energielabel: Energieklasse C
Kosten
Huurprijs (netto): € 731,93
Servicekosten: € 7,81
Huurprijs (bruto): € 739,74
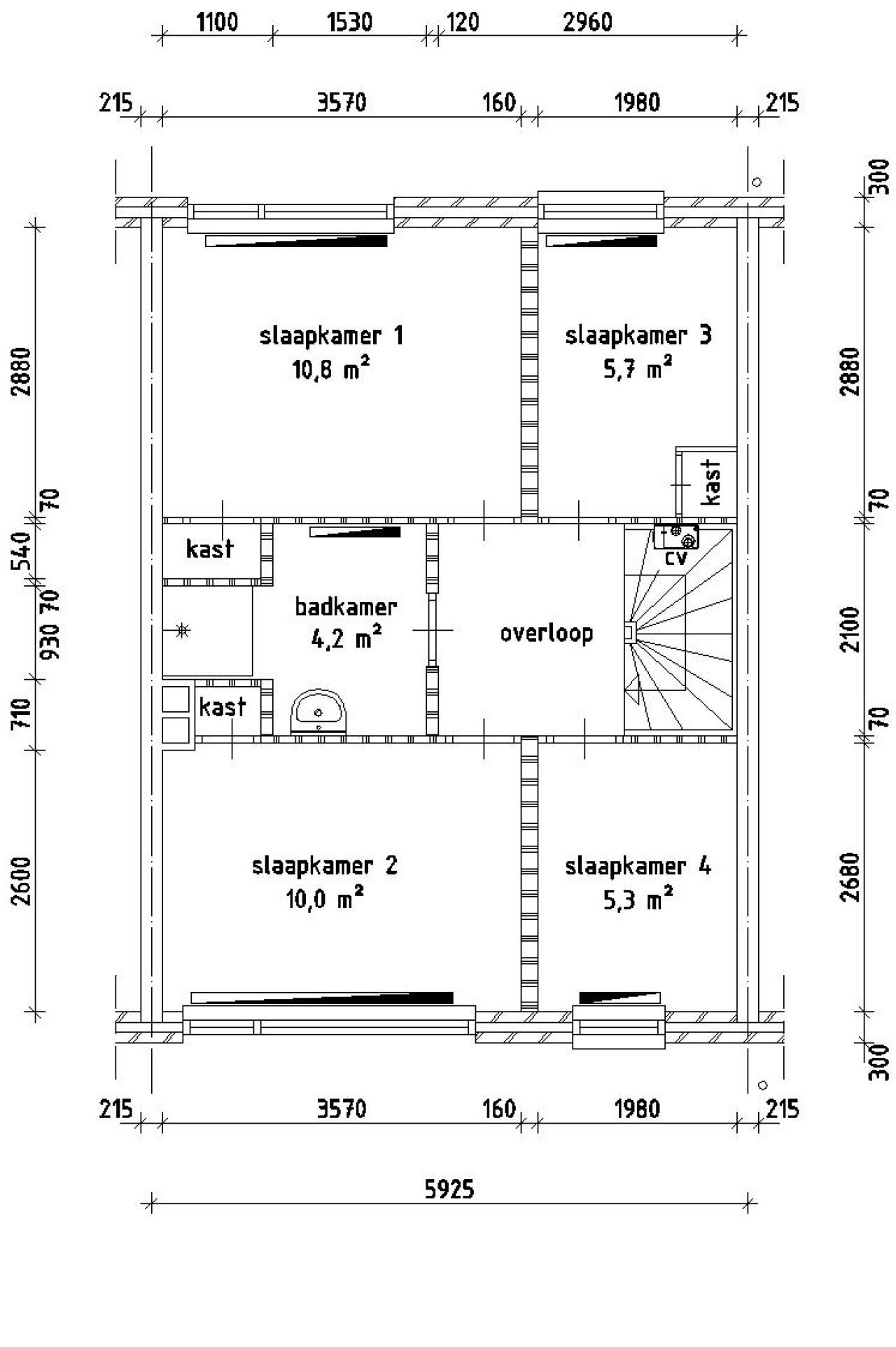
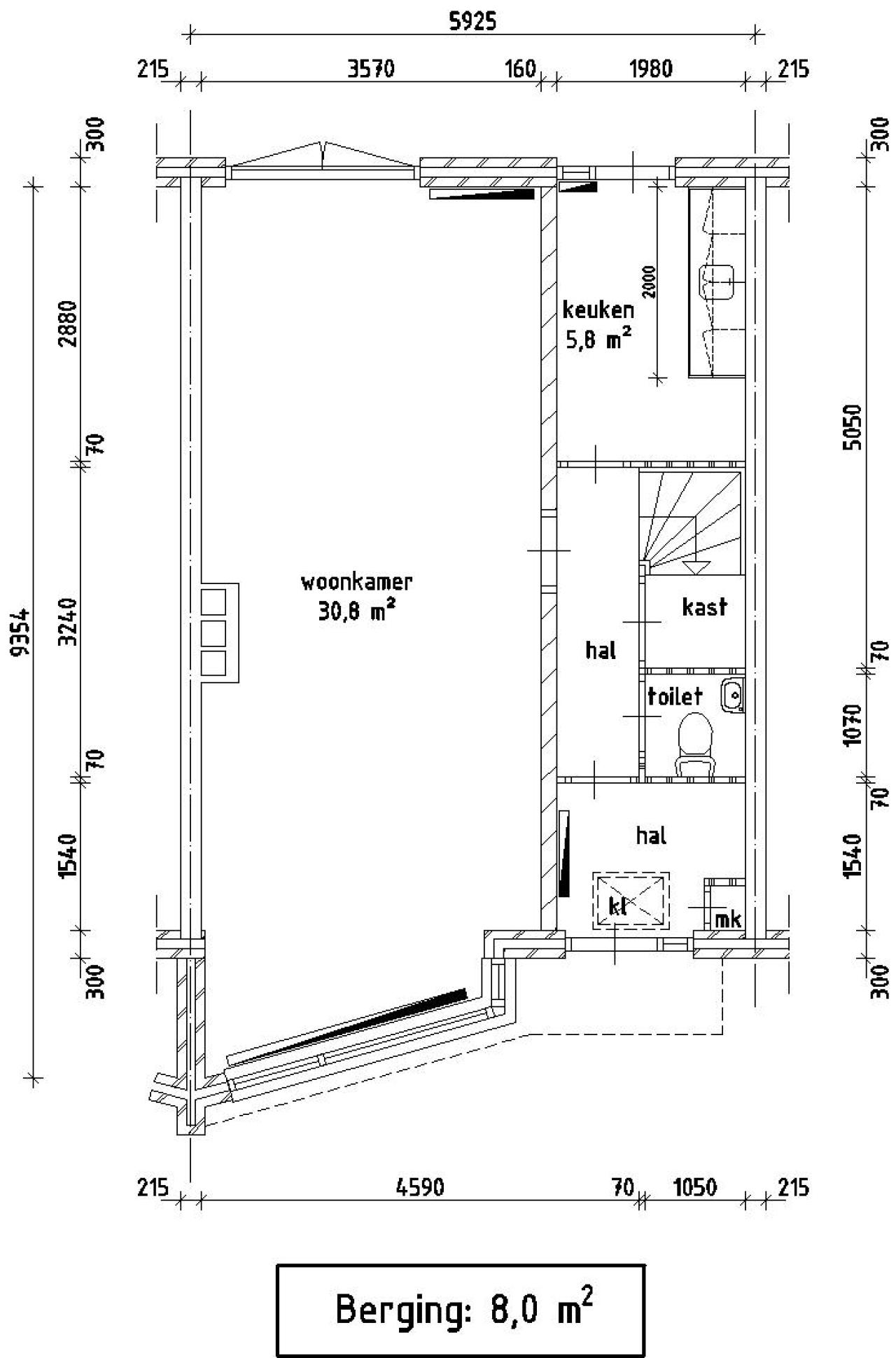
Indeling
Slaapkamer-1: 10.80 m2
Slaapkamer-2: 10.00 m2
Woonkamer-1: 30.80 m2
Slaapkamer-4: 5.30 m2
Keuken-1: 5.80 m2
Badkamer-1: 4.20 m2
Berging-1: 8.00 m2
Slaapkamer-3: 5.70 m2

Totale oppervlakte: 80.60 m2


Elektrisch koken 

Elektrisch koken van toepassing: koken met gas niet mogelijk.


Zonnepanelen

Deze woning is voorzien van zonnepanelen.

Voorkeur meerpersoonshuishoudens
Deze woning wordt bij voorkeur verhuurd aan een huishouden van minimaal 3 personen. Overige huishoudens kunnen wel reageren maar komen op een wachtlijst. Huishoudens op de wachtlijst worden geselecteerd als er geen huishoudens van minimaal 3 personen beschikbaar zijn.


Aanvragen inkomensverklaring

Indien u in aanmerking komt voor een huurwoning heeft u een inkomensverklaring nodig van de Belastingdienst van uzelf en indien van toepassing van uw partner over het jaar 2024/2025 of een definitieve of voorlopig aanslagbiljet over het jaar 2024/2025.

Om teleurstelling bij toewijzing te voorkomen adviseren wij u in verband met de levertijd nu al deze inkomensverklaring aan te vragen bij de Belastingdienst tel. 0800-0543. Bij toewijzing wordt geen uitstel verleend voor het aanvragen van een inkomensverklaring.


 
 
REAGEREN
U moet eerst inloggen om te kunnen reageren. Heeft u nog geen account?
Schrijf u dan snel in.