Login

 
Eengezinswoning
Zijlstraat 4, Den Helder
Huurprijs: € 739,74 per maand
Overgebleven tijd om te reageren
4 dagen
Aantal reacties
132
Uw positie
Onbekend
Type
Eengezinswoning
Slaapkamers
3
Bouwjaar
1958
Oppervlakte
82.1 m2
housePhoto
housePhoto
housePhoto
housePhoto
Woningkenmerken
Balkon
Berging extern
Tuin
Verwarming & energie
Elektrisch koken
Zonnepanelen
CV combiketel
Extra’s
Vrijhangend toilet
Thermostatische douchekraan

Beschrijving

Advertentie
Advertentienummer: 2025120202
Methode Toewijzen: Zoekrecht
Verwachte verhuurdatum: 29 december 2025
Reageren t/m: 08 december 2025
Corporatie:
Details
Betreft: Eengezinswoning
Type woning: Eengezinswoning
Energielabel: Energieklasse A
Kosten
Huurprijs (netto): € 731,93
Servicekosten: € 7,81
Huurprijs (bruto): € 739,74
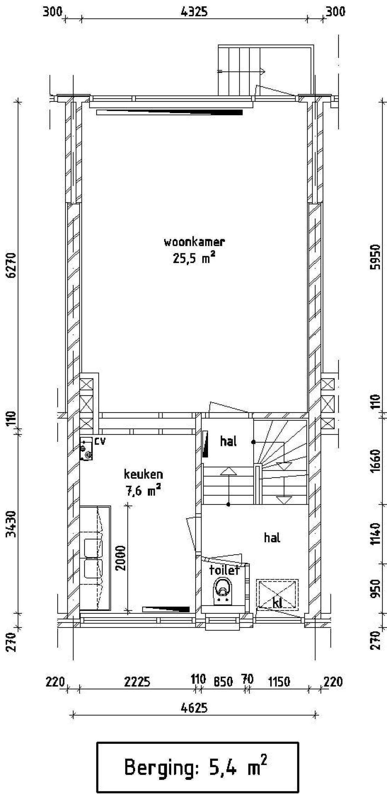
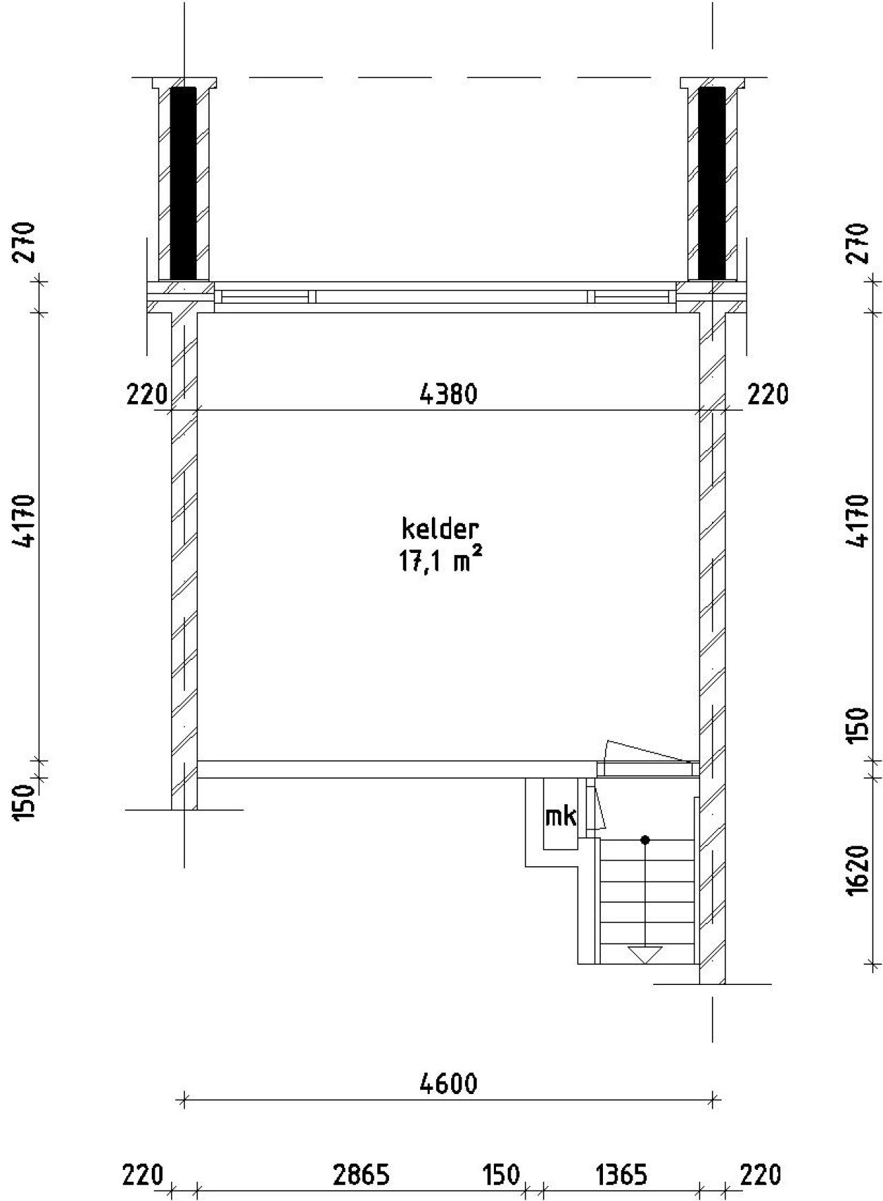
Indeling
Slaapkamer-1: 10.80 m2
Slaapkamer-2: 7.60 m2
Woonkamer-1: 25.50 m2
Kelder-1: 17.10 m2
Keuken-1: 7.60 m2
Badkamer-1: 2.30 m2
Berging-1: 5.40 m2
Slaapkamer-3: 5.80 m2

Totale oppervlakte: 82.10 m2


Elektrisch koken 

Elektrisch koken van toepassing: koken met gas niet mogelijk.


Zonnepanelen

Deze woning is voorzien van zonnepanelen.


Aanvragen inkomensverklaring

Indien u in aanmerking komt voor een huurwoning heeft u een inkomensverklaring nodig van de Belastingdienst van uzelf en indien van toepassing van uw partner over het jaar 2024/2025 of een definitieve of voorlopig aanslagbiljet over het jaar 2024/2025.

Om teleurstelling bij toewijzing te voorkomen adviseren wij u in verband met de levertijd nu al deze inkomensverklaring aan te vragen bij de Belastingdienst tel. 0800-0543. Bij toewijzing wordt geen uitstel verleend voor het aanvragen van een inkomensverklaring.


 
 
REAGEREN
U moet eerst inloggen om te kunnen reageren. Heeft u nog geen account?
Schrijf u dan snel in.