Login

 
Appartement 1e Etage
Peelstraat 4, Den Helder
Huurprijs: € 624,97 per maand
Overgebleven tijd om te reageren
5 dagen
Aantal reacties
121
Uw positie
Onbekend
Type
Appartement 1e Etage
Slaapkamers
2
Bouwjaar
1962
Oppervlakte
59.4 m2
housePhoto
housePhoto
Woningkenmerken
Balkon
Berging intern
Verwarming & energie
Elektrisch koken
CV combiketel
Extra’s
Intercom
Thermostatische douchekraan

Beschrijving

Advertentie
Advertentienummer: 2025122305
Methode Toewijzen: Zoekrecht
Verwachte verhuurdatum: 02 februari 2026
Reageren t/m: 29 december 2025
Corporatie:
Details
Betreft: Appartement 1e Etage
Type woning: Appartement 1e Etage
Energielabel: Energieklasse B
Kosten
Huurprijs (netto): € 595,54
Servicekosten: € 29,43
Huurprijs (bruto): € 624,97
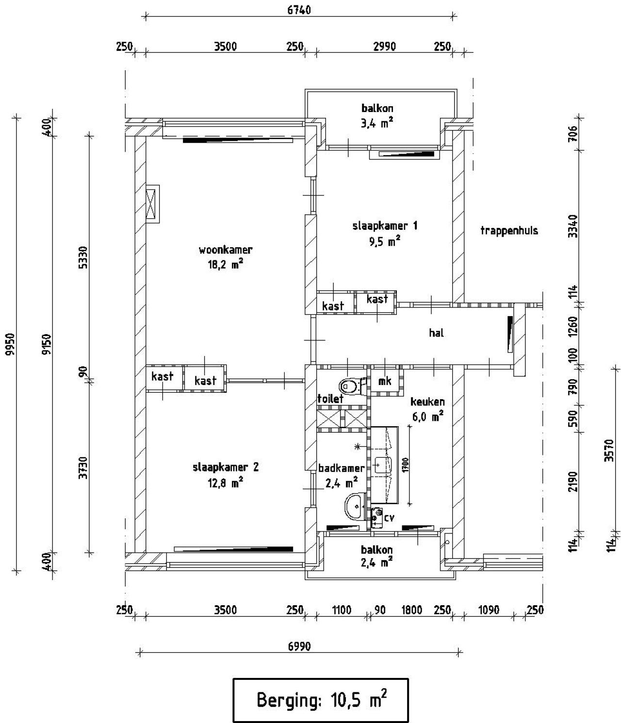
Indeling
Slaapkamer-1: 9.50 m2
Slaapkamer-2: 12.80 m2
Woonkamer-1: 18.20 m2
Keuken-1: 6.00 m2
Badkamer-1: 2.40 m2
Berging-1: 10.50 m2

Totale oppervlakte: 59.40 m2


Elektrisch koken 

Elektrisch koken van toepassing: koken met gas niet mogelijk.

Korting mogelijk

Jongeren van 18 t/m 22 jaar kunnen indien zij qua inkomen in aanmerking kunnen komen voor huurtoeslag een tijdelijke korting krijgen op de huurprijs.

Vanaf 1 januari 2026 kunnen jongeren van 18 t/m 20 jaar indien zij qua inkomen in aanmerking komen voor huurtoeslag een tijdelijke korting krijgen op de huurprijs.

Met leefregels
Bij de toewijzing van deze woning dient u akkoord te gaan met de opgestelde leefregels.


Aanvragen inkomensverklaring

Indien u in aanmerking komt voor een huurwoning heeft u een inkomensverklaring nodig van de Belastingdienst van uzelf en indien van toepassing van uw partner over het jaar 2024/2025 of een definitieve of voorlopig aanslagbiljet over het jaar 2024/2025.

Om teleurstelling bij toewijzing te voorkomen adviseren wij u in verband met de levertijd nu al deze inkomensverklaring aan te vragen bij de Belastingdienst tel. 0800-0543. Bij toewijzing wordt geen uitstel verleend voor het aanvragen van een inkomensverklaring.


 
 
REAGEREN
U moet eerst inloggen om te kunnen reageren. Heeft u nog geen account?
Schrijf u dan snel in.