Login

 
Eengezinswoning
Middelzand 4408, Julianadorp
Huurprijs: € 928,95 per maand
Overgebleven tijd om te reageren
3 dagen
Aantal reacties
38
Uw positie
Onbekend
Type
Eengezinswoning
Slaapkamers
3
Bouwjaar
1978
Oppervlakte
82.7 m2
housePhoto
housePhoto
housePhoto
housePhoto
Woningkenmerken
Berging extern
Tuin
Verwarming & energie
Elektrisch koken
Zonnepanelen
CV combiketel
Extra’s
Vrijhangend toilet
Thermostatische douchekraan
Extra toilet in badkamer

Beschrijving

Advertentie
Advertentienummer: 2025112003
Methode Toewijzen: Zoekrecht
Verwachte verhuurdatum: 26 januari 2026
Reageren t/m: 26 november 2025
Corporatie:
Details
Betreft: Eengezinswoning
Type woning: Eengezinswoning
Energielabel: Energieklasse B
Kosten
Huurprijs (netto): € 908,48
Servicekosten: € 20,47
Huurprijs (bruto): € 928,95
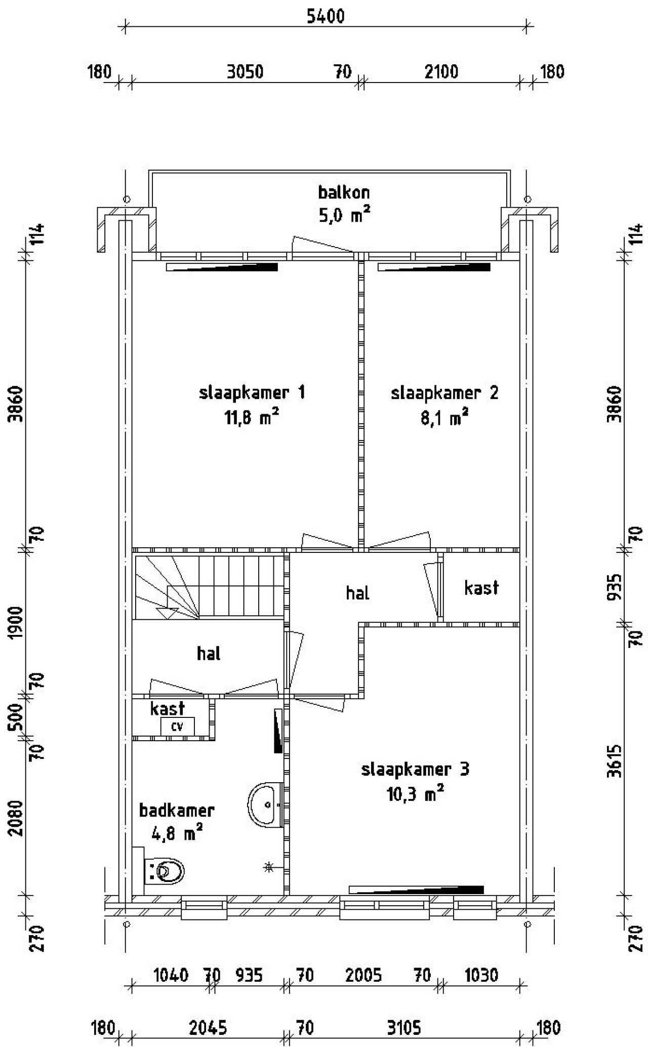
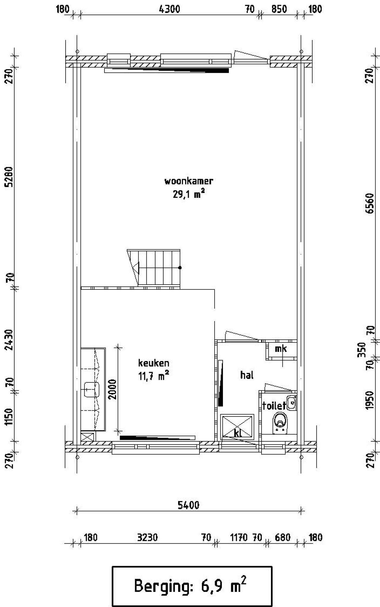
Indeling
Slaapkamer-1: 11.80 m2
Slaapkamer-2: 8.10 m2
Woonkamer-1: 29.10 m2
Keuken-1: 11.70 m2
Badkamer-1: 4.80 m2
Berging-1: 6.90 m2
Slaapkamer-3: 10.30 m2

Totale oppervlakte: 82.70 m2

Zonnepanelen

Deze woning is voorzien van zonnepanelen.

Elektrisch koken
Elektrisch koken van toepassing: koken met gas niet mogelijk.

Aanvragen inkomensverklaring

Indien u in aanmerking komt voor een huurwoning heeft u een inkomensverklaring nodig van de Belastingdienst van uzelf en indien van toepassing van uw partner over het jaar 2024/2025 of een definitieve of voorlopig aanslagbiljet over het jaar 2024/2025.

Om teleurstelling bij toewijzing te voorkomen adviseren wij u in verband met de levertijd nu al deze inkomensverklaring aan te vragen bij de Belastingdienst tel. 0800-0543. Bij toewijzing wordt geen uitstel verleend voor het aanvragen van een inkomensverklaring.


 
 
REAGEREN
U moet eerst inloggen om te kunnen reageren. Heeft u nog geen account?
Schrijf u dan snel in.