Login

 
Appartement 2e Etage
Willem Barentszstraat 128, Den Helder
Huurprijs: € 595,73 per maand
Overgebleven tijd om te reageren
3 dagen
Aantal reacties
114
Uw positie
Onbekend
Type
Appartement 2e Etage
Slaapkamers
2
Bouwjaar
1953
Oppervlakte
67.5 m2
housePhoto
housePhoto
Woningkenmerken
Balkon
Berging extern
Verwarming & energie
Elektrisch koken
CV combiketel
Extra’s
Intercom
Vrijhangend toilet
Thermostatische douchekraan

Beschrijving

Advertentie
Advertentienummer: 2025112414
Methode Toewijzen: Zoekrecht
Verwachte verhuurdatum: 19 januari 2026
Reageren t/m: 30 november 2025
Corporatie:
Details
Betreft: Appartement 2e Etage
Type woning: Appartement 2e Etage
Energielabel: Energieklasse C
Kosten
Huurprijs (netto): € 580,64
Servicekosten: € 15,09
Huurprijs (bruto): € 595,73
Indeling
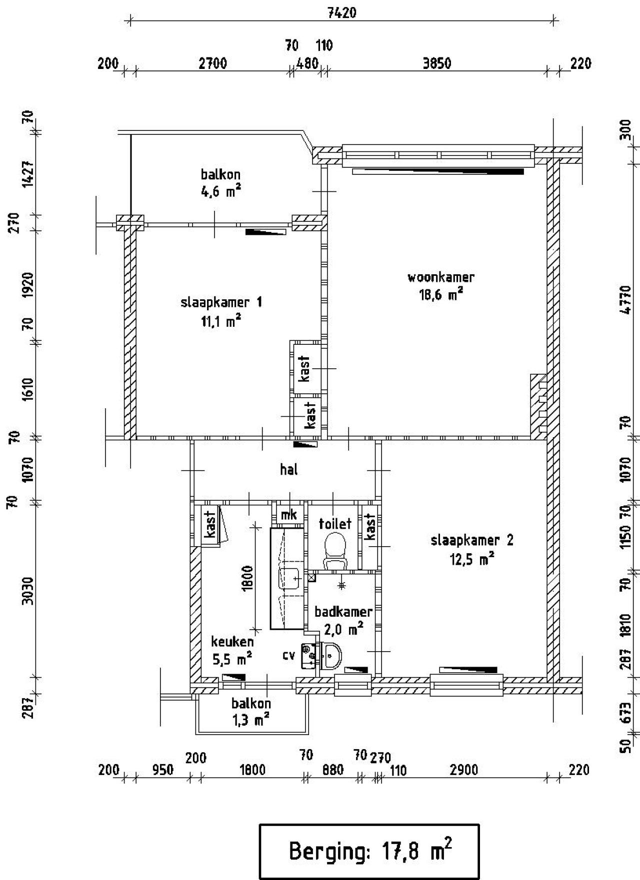
Slaapkamer-1: 11.10 m2
Slaapkamer-2: 12.50 m2
Woonkamer-1: 18.60 m2
Keuken-1: 5.50 m2
Badkamer-1: 2.00 m2
Berging-1: 17.80 m2

Totale oppervlakte: 67.50 m2


Elektrisch koken 

Elektrisch koken van toepassing: koken met gas niet mogelijk.


Aanvragen inkomensverklaring

Indien u in aanmerking komt voor een huurwoning heeft u een inkomensverklaring nodig van de Belastingdienst van uzelf en indien van toepassing van uw partner over het jaar 2024/2025 of een definitieve of voorlopig aanslagbiljet over het jaar 2024/2025.

Om teleurstelling bij toewijzing te voorkomen adviseren wij u in verband met de levertijd nu al deze inkomensverklaring aan te vragen bij de Belastingdienst tel. 0800-0543. Bij toewijzing wordt geen uitstel verleend voor het aanvragen van een inkomensverklaring.


 
 
REAGEREN
U moet eerst inloggen om te kunnen reageren. Heeft u nog geen account?
Schrijf u dan snel in.