Onderhoudsmelding
De ochtend van woensdag 1 april zal er onderhoud uitgevoerd worden op deze site.
Mogelijk werken links niet meer en zult u opnieuw moeten inloggen.
Ververs eventueel de site.
Als u deze melding niet meer ziet, zijn de werkzaamheden afgerond.
 

Login

 
Appartement 3e Etage
Jan Verfailleweg 494, Den Helder
Huurprijs: € 830,24 per maand
Overgebleven tijd om te reageren
6 dagen
Aantal reacties
32
Uw positie
Onbekend
Type
Appartement 3e Etage
Slaapkamers
3
Bouwjaar
1962
Oppervlakte
96.5 m2
housePhoto
housePhoto
housePhoto
Woningkenmerken
Balkon
Berging extern
Verwarming & energie
Elektrisch koken
Collectief gestookt
Extra’s
Intercom
Thermostatische douchekraan

Beschrijving

Advertentie
Advertentienummer: 2026033108
Methode Toewijzen: Zoekrecht
Verwachte verhuurdatum: 08 april 2026
Reageren t/m: 06 april 2026
Corporatie:
Details
Betreft: Appartement 3e Etage
Type woning: Appartement 3e Etage
Energielabel: Energieklasse A
Kosten
Huurprijs (netto): € 800,20
Servicekosten: € 30,04
Huurprijs (bruto): € 830,24
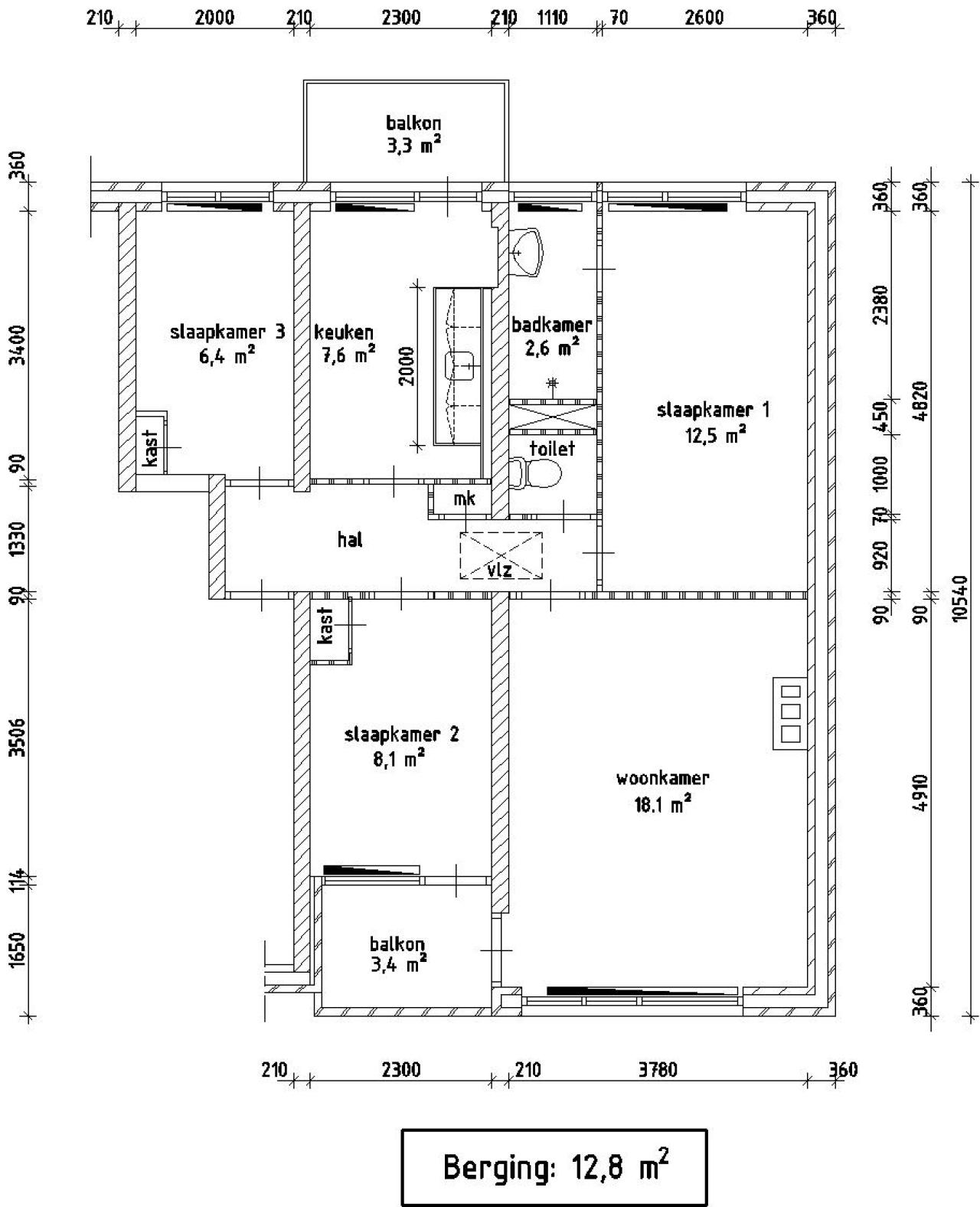
Indeling
Slaapkamer-1: 12.50 m2
Slaapkamer-2: 8.10 m2
Woonkamer-1: 18.10 m2
Keuken-1: 7.60 m2
Badkamer-1: 2.60 m2
Berging-1: 12.80 m2
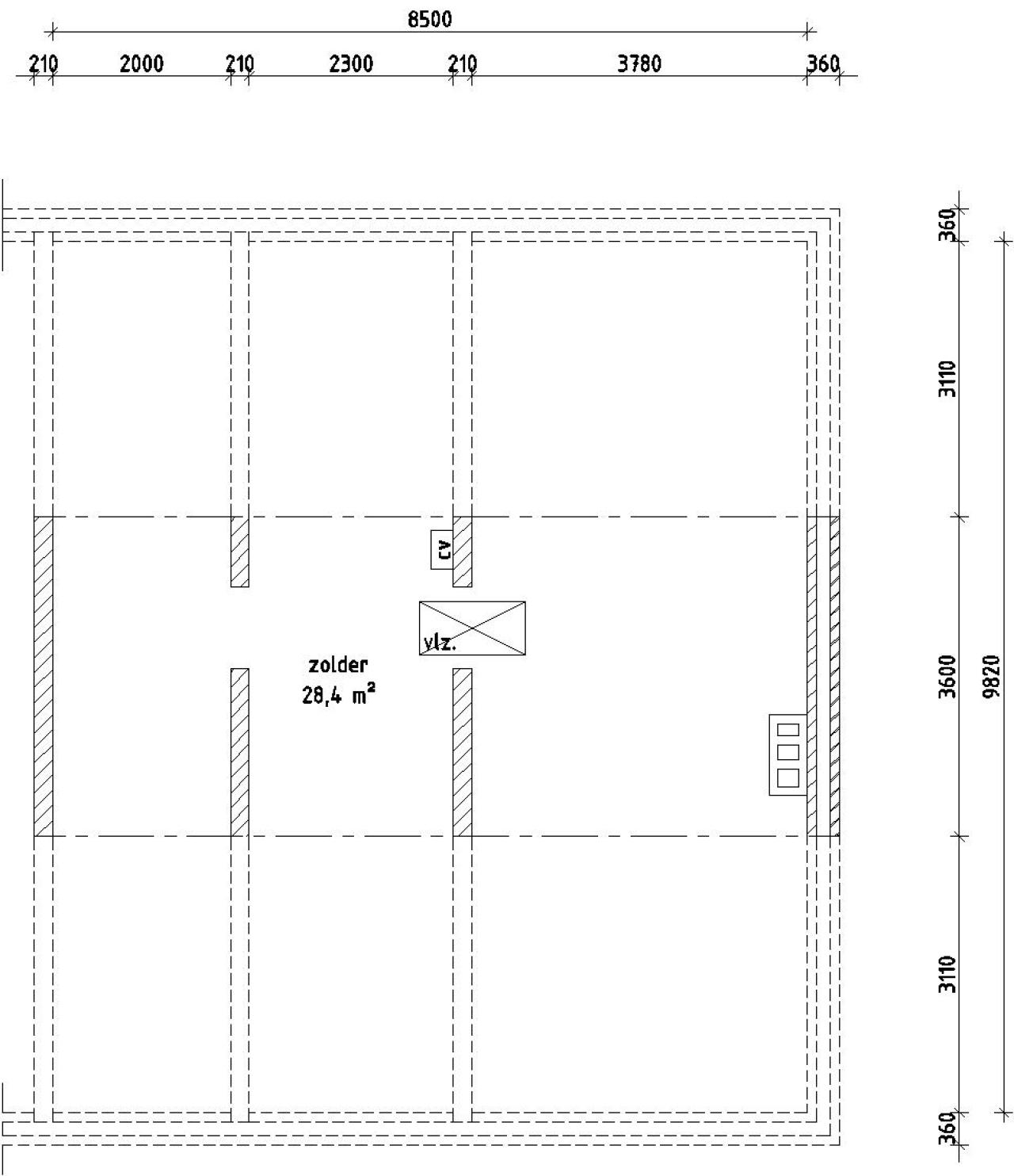
Zolder-1: 28.40 m2
Slaapkamer-3: 6.40 m2

Totale oppervlakte: 96.50 m2


Elektrisch koken 

Elektrisch koken van toepassing: koken met gas niet mogelijk.

Af te rekenen gasverbruik
In de servicekosten is een voorschotbedrag opgenomen voor gasverbruik.

Af te rekenen waterverbruik
In de servicekosten is een voorschotbedrag opgenomen voor waterverbruik.


Aanvragen inkomensverklaring

Indien u in aanmerking komt voor een huurwoning heeft u een inkomensverklaring nodig van de Belastingdienst van uzelf en indien van toepassing van uw partner over het jaar 2024/2025 of een definitieve of voorlopig aanslagbiljet over het jaar 2024/2025.

Om teleurstelling bij toewijzing te voorkomen adviseren wij u in verband met de levertijd nu al deze inkomensverklaring aan te vragen bij de Belastingdienst tel. 0800-0543. Bij toewijzing wordt geen uitstel verleend voor het aanvragen van een inkomensverklaring.


 
 
REAGEREN
U moet eerst inloggen om te kunnen reageren. Heeft u nog geen account?
Schrijf u dan snel in.