Login

 
Eengezinswoning
Diezestraat 9, Den Helder
Huurprijs: € 739,74 per maand
Overgebleven tijd om te reageren
3 dagen
Aantal reacties
138
Uw positie
Onbekend
Type
Eengezinswoning
Slaapkamers
3
Bouwjaar
1958
Oppervlakte
81.6 m2
housePhoto
housePhoto
housePhoto
housePhoto
Woningkenmerken
Berging extern
Tuin
Verwarming & energie
Elektrisch koken
CV combiketel
Extra’s
Thermostatische douchekraan
Vlizotrap naar bergzolder

Beschrijving

Advertentie
Advertentienummer: 2025112420
Methode Toewijzen: Zoekrecht
Verwachte verhuurdatum: 06 februari 2026
Reageren t/m: 30 november 2025
Corporatie:
Details
Betreft: Eengezinswoning
Type woning: Eengezinswoning
Energielabel: Energieklasse B
Kosten
Huurprijs (netto): € 731,93
Servicekosten: € 7,81
Huurprijs (bruto): € 739,74
Indeling
Slaapkamer-1: 14.30 m2
Slaapkamer-2: 10.50 m2
Woonkamer-1: 24.40 m2
Keuken-1: 6.30 m2
Badkamer-1: 2.90 m2
Berging-1: 6.70 m2
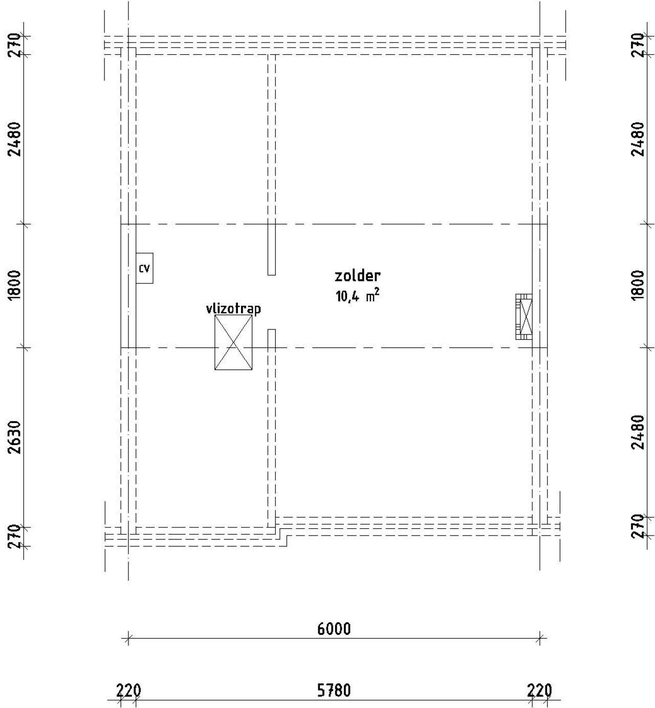
Zolder-1: 10.40 m2
Slaapkamer-3: 6.10 m2

Totale oppervlakte: 81.60 m2


Elektrisch koken 

Elektrisch koken van toepassing: koken met gas niet mogelijk.


Aanvragen inkomensverklaring

Indien u in aanmerking komt voor een huurwoning heeft u een inkomensverklaring nodig van de Belastingdienst van uzelf en indien van toepassing van uw partner over het jaar 2024/2025 of een definitieve of voorlopig aanslagbiljet over het jaar 2024/2025.

Om teleurstelling bij toewijzing te voorkomen adviseren wij u in verband met de levertijd nu al deze inkomensverklaring aan te vragen bij de Belastingdienst tel. 0800-0543. Bij toewijzing wordt geen uitstel verleend voor het aanvragen van een inkomensverklaring.


 
 
REAGEREN
U moet eerst inloggen om te kunnen reageren. Heeft u nog geen account?
Schrijf u dan snel in.