Login

 
Appartement 6e Etage met lift
Hendrik Baskeweg 271, Den Helder
Huurprijs: € 774,19 per maand
Overgebleven tijd om te reageren
4 dagen
Aantal reacties
36
Uw positie
Onbekend
Type
Appartement 6e Etage met lift
Slaapkamers
2
Bouwjaar
1972
Oppervlakte
76.2 m2
housePhoto
housePhoto

Voorwaarden en/of vereisten

Eisen aan de leeftijd
Voor deze woning geldt een minimale, of maximale leeftijd
Minimaal 65 jaar (Verplicht)
Woningkenmerken
Balkon
Berging extern
Gelijkvloers
Lift
Verwarming & energie
Elektrisch koken
CV combiketel
Extra’s
Videofoon
Thermostatische douchekraan

Beschrijving

Advertentie
Advertentienummer: 2025112510
Methode Toewijzen: Zoekrecht
Verwachte verhuurdatum: 12 januari 2026
Reageren t/m: 01 december 2025
Corporatie:
Details
Betreft: Appartement 6e Etage met lift
Type woning: Appartement 6e Etage met lift
Energielabel: Energieklasse A
Kosten
Huurprijs (netto): € 731,93
Servicekosten: € 42,26
Huurprijs (bruto): € 774,19
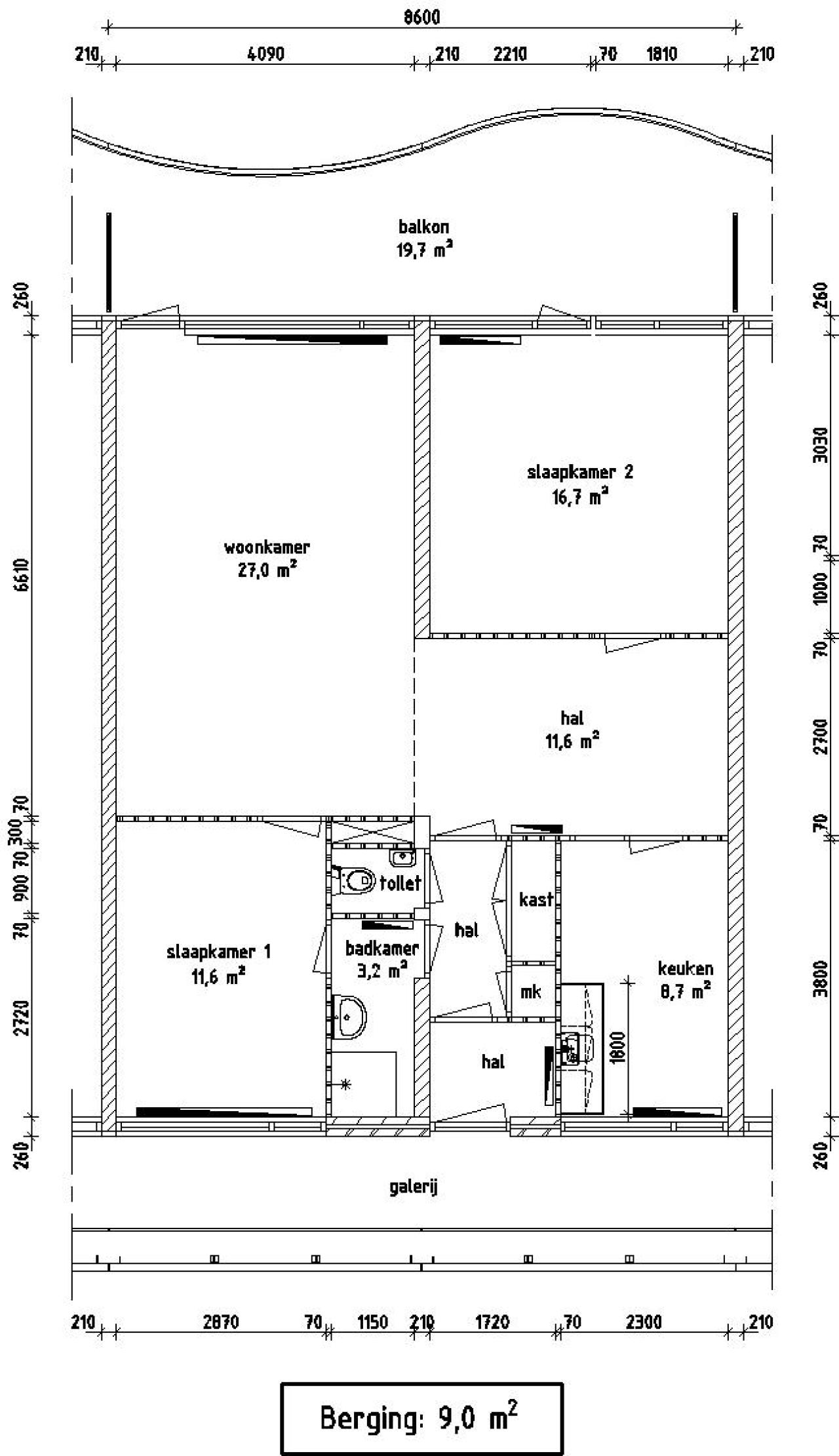
Indeling
Slaapkamer-1: 11.60 m2
Slaapkamer-2: 16.70 m2
Woonkamer-1: 27.00 m2
Keuken-1: 8.70 m2
Badkamer-1: 3.20 m2
Berging-1: 9.00 m2

Totale oppervlakte: 76.20 m2


Elektrisch koken 

Elektrisch koken van toepassing: koken met gas niet mogelijk.


Aanvragen inkomensverklaring

Indien u in aanmerking komt voor een huurwoning heeft u een inkomensverklaring nodig van de Belastingdienst van uzelf en indien van toepassing van uw partner over het jaar 2024/2025 of een definitieve of voorlopig aanslagbiljet over het jaar 2024/2025.

Om teleurstelling bij toewijzing te voorkomen adviseren wij u in verband met de levertijd nu al deze inkomensverklaring aan te vragen bij de Belastingdienst tel. 0800-0543. Bij toewijzing wordt geen uitstel verleend voor het aanvragen van een inkomensverklaring.


 
 
REAGEREN
U moet eerst inloggen om te kunnen reageren. Heeft u nog geen account?
Schrijf u dan snel in.