Login

 
Seniorenwoning
Fregathof 12, Den Helder
Huurprijs: € 531,83 per maand
Overgebleven tijd om te reageren
3 dagen
Aantal reacties
44
Uw positie
Onbekend
Type
Seniorenwoning
Slaapkamers
1
Bouwjaar
1969
Oppervlakte
44.9 m2
housePhoto
housePhoto

Voorwaarden en/of vereisten

Eisen aan de leeftijd
Voor deze woning geldt een minimale, of maximale leeftijd
Minimaal 65 jaar
Woningkenmerken
Levensloopbestendig
Berging intern
Gelijkvloers
Open keuken
Tuin
Verwarming & energie
Elektrisch koken
CV combiketel
Extra’s
Vrijhangend toilet
Thermostatische douchekraan

Beschrijving

Advertentie
Advertentienummer: 2025112010
Methode Toewijzen: Zoekrecht
Verwachte verhuurdatum: 22 december 2025
Reageren t/m: 26 november 2025
Corporatie:
Details
Betreft: Seniorenwoning
Type woning: Seniorenwoning
Energielabel: Energieklasse D
Kosten
Huurprijs (netto): € 524,02
Servicekosten: € 7,81
Huurprijs (bruto): € 531,83
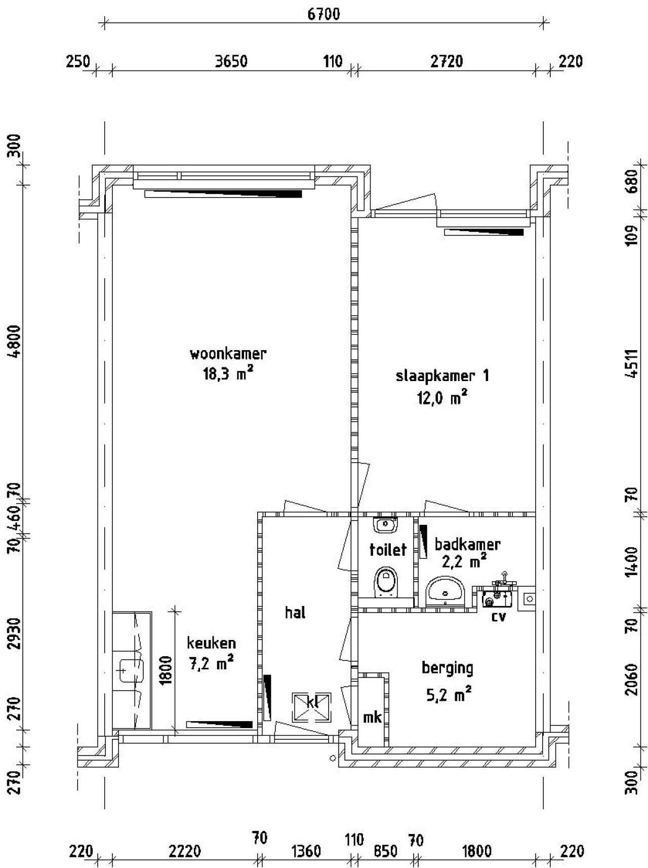
Indeling
Slaapkamer-1: 12.00 m2
Woonkamer-1: 18.30 m2
Keuken-1: 7.20 m2
Badkamer-1: 2.20 m2
Berging-1: 5.20 m2

Totale oppervlakte: 44.90 m2


Elektrisch koken 

Elektrisch koken van toepassing: koken met gas niet mogelijk.

Voorkeur 65 jaar of ouder
Deze woning wordt bij voorkeur verhuurd aan een kandidaat van 65 jaar of ouder. Kandidaten jonger dan 65 jaar kunnen wel reageren maar komen op een wachtlijst. Personen op de wachtlijst worden geselecteerd als er geen kandidaten van 65 jaar of ouder beschikbaar zijn.


Aanvragen inkomensverklaring

Indien u in aanmerking komt voor een huurwoning heeft u een inkomensverklaring nodig van de Belastingdienst van uzelf en indien van toepassing van uw partner over het jaar 2024/2025 of een definitieve of voorlopig aanslagbiljet over het jaar 2024/2025.

Om teleurstelling bij toewijzing te voorkomen adviseren wij u in verband met de levertijd nu al deze inkomensverklaring aan te vragen bij de Belastingdienst tel. 0800-0543. Bij toewijzing wordt geen uitstel verleend voor het aanvragen van een inkomensverklaring.


 
 
REAGEREN
U moet eerst inloggen om te kunnen reageren. Heeft u nog geen account?
Schrijf u dan snel in.