Login

 
Appartement 1e Etage
Geleenstraat 34, Den Helder
Huurprijs: € 314,76 per maand
Overgebleven tijd om te reageren
4 dagen
Aantal reacties
70
Uw positie
Onbekend
Type
Appartement 1e Etage
Slaapkamers
0
Bouwjaar
1962
Oppervlakte
33.6 m2
housePhoto
housePhoto

Voorwaarden en/of vereisten

Aantal personen in uw huishouden
Voor deze woning geldt een minimale of maximale huishoudgrootte. Voor uw huishoudgrootte tellen u, uw eventuele partner, uw eventuele kinderen, en eventuele andere inwonende bewoners mee.
Maximaal 2 person(en)
Woningkenmerken
Balkon
Berging extern
Verwarming & energie
Elektrisch koken
CV combiketel
Extra’s
Thermostatische douchekraan

Beschrijving

Advertentie
Advertentienummer: 2025112509
Methode Toewijzen: Zoekrecht
Verwachte verhuurdatum: 26 januari 2026
Reageren t/m: 01 december 2025
Corporatie:
Details
Betreft: Appartement 1e Etage
Type woning: Appartement 1e Etage
Energielabel: Energieklasse G
Kosten
Huurprijs (netto): € 300,00
Servicekosten: € 14,76
Huurprijs (bruto): € 314,76
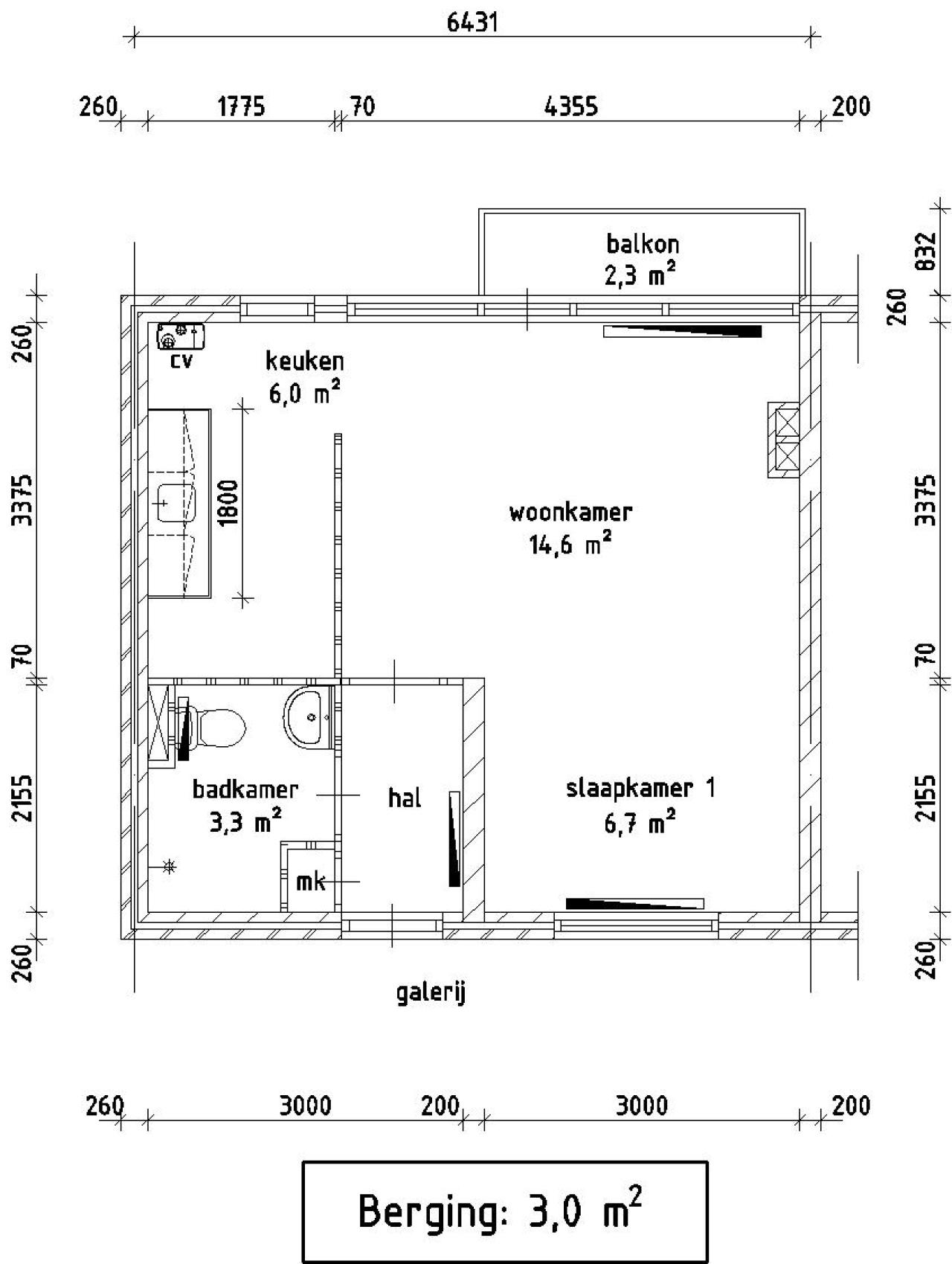
Indeling
Woon-/slaapkamer-1: 21.30 m2
Keuken-1: 6.00 m2
Badkamer-1: 3.30 m2
Berging-1: 3.00 m2

Totale oppervlakte: 33.60 m2


Elektrisch koken 

Elektrisch koken van toepassing: koken met gas niet mogelijk.


Aanvragen inkomensverklaring

Indien u in aanmerking komt voor een huurwoning heeft u een inkomensverklaring nodig van de Belastingdienst van uzelf en indien van toepassing van uw partner over het jaar 2024/2025 of een definitieve of voorlopig aanslagbiljet over het jaar 2024/2025.

Om teleurstelling bij toewijzing te voorkomen adviseren wij u in verband met de levertijd nu al deze inkomensverklaring aan te vragen bij de Belastingdienst tel. 0800-0543. Bij toewijzing wordt geen uitstel verleend voor het aanvragen van een inkomensverklaring.


 
 
REAGEREN
U moet eerst inloggen om te kunnen reageren. Heeft u nog geen account?
Schrijf u dan snel in.