Login

 
Appartement 3e Etage met lift
Walvisvaardersweg 90, Den Helder
Huurprijs: € 868,89 per maand
Overgebleven tijd om te reageren
3 dagen
Aantal reacties
23
Uw positie
Onbekend
Type
Appartement 3e Etage met lift
Slaapkamers
2
Bouwjaar
2002
Oppervlakte
60.22 m2
housePhoto
housePhoto

Voorwaarden en/of vereisten

Eisen aan de leeftijd
Voor deze woning geldt een minimale, of maximale leeftijd
Minimaal 65 jaar (Verplicht)
Woningkenmerken
Balkon
Berging intern
Gelijkvloers
Lift
Open keuken
Verwarming & energie
Elektrisch koken
CV combiketel
Extra’s
Videofoon
Thermostatische douchekraan

Beschrijving

Advertentie
Advertentienummer: 2026013008
Methode Toewijzen: Zoekrecht
Verwachte verhuurdatum: 23 april 2026
Reageren t/m: 05 februari 2026
Corporatie:
Details
Betreft: Appartement 3e Etage met lift
Type woning: Appartement 3e Etage met lift
Energielabel: Energieklasse A+
Kosten
Huurprijs (netto): € 823,20
Servicekosten: € 45,69
Huurprijs (bruto): € 868,89
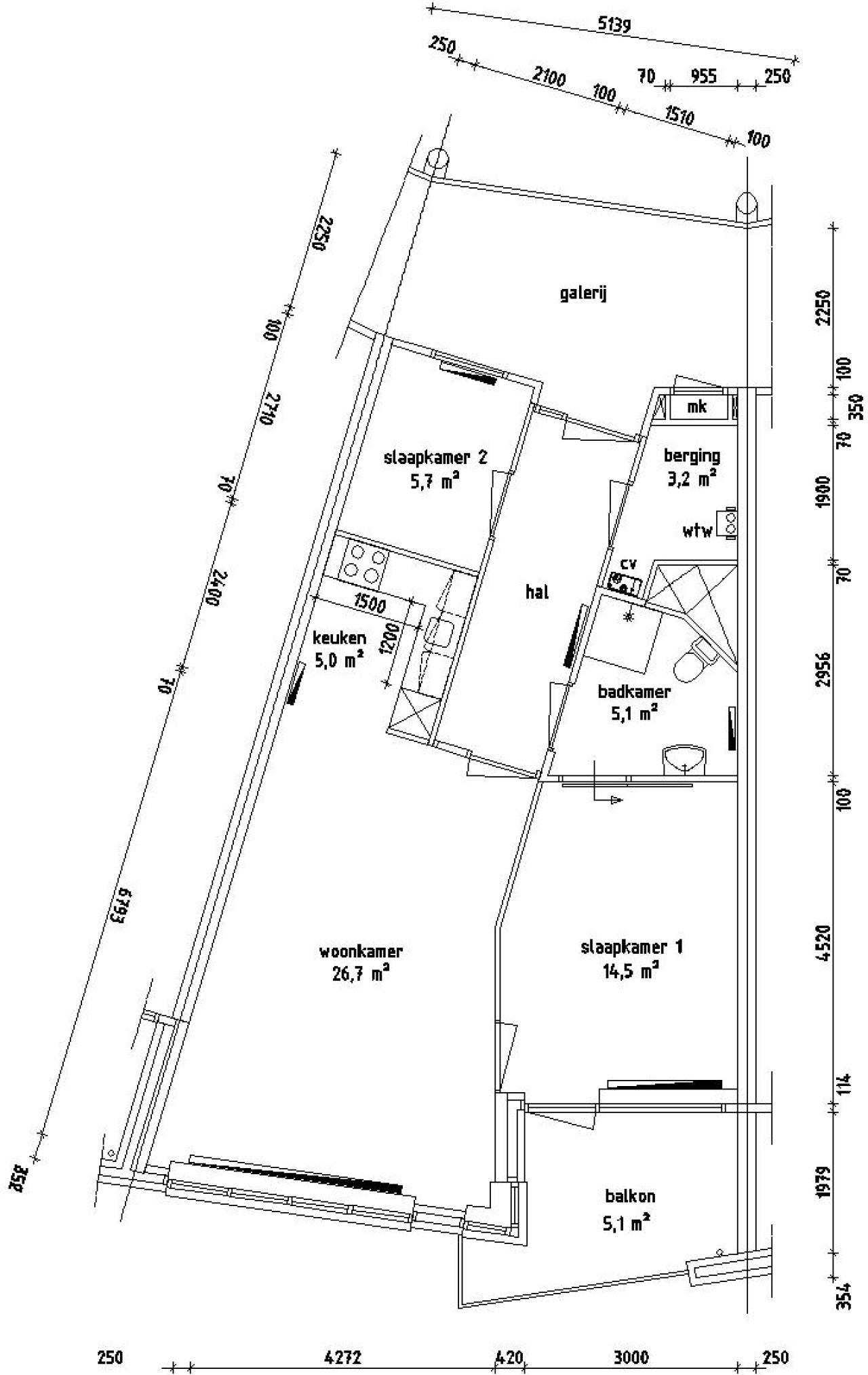
Indeling
Slaapkamer-1: 14.50 m2
Slaapkamer-2: 5.70 m2
Woonkamer-1: 26.72 m2
Keuken-1: 5.00 m2
Badkamer-1: 5.10 m2
Berging-1: 3.20 m2

Totale oppervlakte: 60.22 m2


Elektrisch koken

Elektrisch koken van toepassing: koken met gas niet mogelijk.


Aanvragen Inkomensverklaring

Indien u in aanmerking komt voor een huurwoning heeft u een inkomensverklaring nodig van de Belastingdienst van uzelf en indien van toepassing van uw partner over het jaar 2024/2025 of een definitieve of voorlopig aanslagbiljet over het jaar 2024/2025.

Om teleurstelling bij toewijzing te voorkomen adviseren wij u in verband met de levertijd nu al deze inkomensverklaring aan te vragen bij de Belastingdienst tel. 0800-0543. Bij toewijzing wordt geen uitstel verleend voor het aanvragen van een inkomensverklaring.


 
 
REAGEREN
U moet eerst inloggen om te kunnen reageren. Heeft u nog geen account?
Schrijf u dan snel in.