Login

 
Appartement 3e Etage met lift
Heiligharn 288, Den Helder
Huurprijs: € 1.047,91 per maand
Overgebleven tijd om te reageren
3 dagen
Aantal reacties
34
Uw positie
Onbekend
Type
Appartement 3e Etage met lift
Slaapkamers
3
Bouwjaar
1971
Oppervlakte
84.1 m2
housePhoto
housePhoto

Voorwaarden en/of vereisten

Eisen aan de leeftijd
Voor deze woning geldt een minimale, of maximale leeftijd
Minimaal 65 jaar (Verplicht)
Woningkenmerken
Balkon
Berging extern
Gelijkvloers
Lift
Verwarming & energie
Elektrisch koken
Collectief gestookt
Extra’s
Videofoon
Vrijhangend toilet
Thermostatische douchekraan

Beschrijving

Advertentie
Advertentienummer: 2025120103
Methode Toewijzen: Zoekrecht
Verwachte verhuurdatum: 16 maart 2026
Reageren t/m: 07 december 2025
Corporatie:
Details
Betreft: Appartement 3e Etage met lift
Type woning: Appartement 3e Etage met lift
Energielabel: Energieklasse A
Kosten
Huurprijs (netto): € 900,07
Servicekosten: € 147,84
Huurprijs (bruto): € 1.047,91
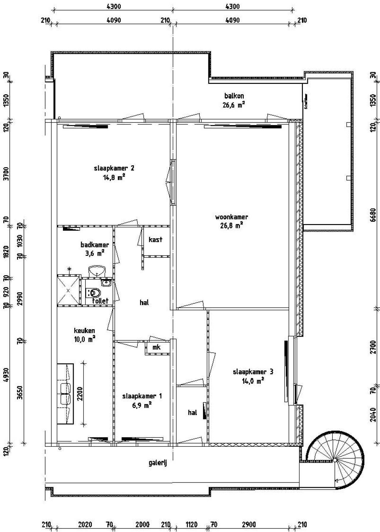
Indeling
Slaapkamer-1: 6.90 m2
Slaapkamer-2: 14.80 m2
Woonkamer-1: 26.80 m2
Keuken-1: 10.00 m2
Badkamer-1: 3.60 m2
Berging-1: 8.00 m2
Slaapkamer-3: 14.00 m2

Totale oppervlakte: 84.10 m2


Elektrisch koken 

Elektrisch koken van toepassing: koken met gas niet mogelijk.

Af te rekenen gasverbruik
In de servicekosten is een voorschotbedrag opgenomen voor gasverbruik.

Af te rekenen waterverbruik
In de servicekosten is een voorschotbedrag opgenomen voor waterverbruik.


Aanvragen inkomensverklaring

Indien u in aanmerking komt voor een huurwoning heeft u een inkomensverklaring nodig van de Belastingdienst van uzelf en indien van toepassing van uw partner over het jaar 2024/2025 of een definitieve of voorlopig aanslagbiljet over het jaar 2024/2025.

Om teleurstelling bij toewijzing te voorkomen adviseren wij u in verband met de levertijd nu al deze inkomensverklaring aan te vragen bij de Belastingdienst tel. 0800-0543. Bij toewijzing wordt geen uitstel verleend voor het aanvragen van een inkomensverklaring.


 
 
REAGEREN
U moet eerst inloggen om te kunnen reageren. Heeft u nog geen account?
Schrijf u dan snel in.