Login

 
Appartement 3e Etage
Grebbestraat 52, Den Helder
Huurprijs: € 686,98 per maand
Overgebleven tijd om te reageren
1 dag
Aantal reacties
220
Uw positie
Onbekend
Type
Appartement 3e Etage
Slaapkamers
3
Bouwjaar
1962
Oppervlakte
68.4 m2
housePhoto
housePhoto
Woningkenmerken
Balkon
Berging extern
Verwarming & energie
Elektrisch koken
CV combiketel
Extra’s
Intercom
Thermostatische douchekraan

Beschrijving

Advertentie
Advertentienummer: 2025100904
Methode Toewijzen: Zoekrecht
Verwachte verhuurdatum: 03 november 2025
Reageren t/m: 15 oktober 2025
Corporatie:
Details
Betreft: Appartement 3e Etage
Type woning: Appartement 3e Etage
Energielabel: Energieklasse B
Kosten
Huurprijs (netto): € 657,55
Servicekosten: € 29,43
Huurprijs (bruto): € 686,98
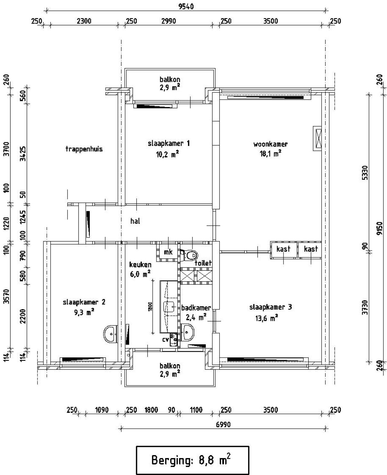
Indeling
Slaapkamer-1: 10.20 m2
Slaapkamer-2: 9.30 m2
Woonkamer-1: 18.10 m2
Keuken-1: 6.00 m2
Badkamer-1: 2.40 m2
Berging-1: 8.80 m2
Slaapkamer-3: 13.60 m2

Totale oppervlakte: 68.40 m2

Met leefregels
Bij de toewijzing van deze woning dient u akkoord te gaan met de opgestelde leefregels.


Elektrisch koken van toepassing: koken met gas niet mogelijk.

korting mogelijk
Jongeren van 18 t/m 22 jaar kunnen indien zij qua inkomen in aanmerking kunnen komen voor huurtoeslag een tijdelijke korting krijgen op de huurprijs.


Indien u in aanmerking komt voor een huurwoning heeft u een inkomensverklaring nodig van de belastingdienst van uzelf en indien van toepassing van uw partner over het jaar 2023/2024 of een definitieve of voorlopig aanslagbiljet over het jaar 2023/2024. Om teleurstelling bij toewijzing te voorkomen adviseren wij u in verband met de levertijd nu al deze inkomensverklaring aan te vragen bij de belastingdienst tel. 0800-0543. Bij toewijzing wordt geen uitstel verleend voor het aanvragen van een inkomensverklaring.


 
 
REAGEREN
U moet eerst inloggen om te kunnen reageren. Heeft u nog geen account?
Schrijf u dan snel in.