Login

 
Seniorenwoning
Op Goeree 10, Callantsoog
Huurprijs: € 673,47 per maand
Overgebleven tijd om te reageren
3 dagen
Aantal reacties
33
Uw positie
Onbekend
Type
Seniorenwoning
Slaapkamers
2
Bouwjaar
1972
Oppervlakte
50.2 m2
housePhoto
housePhoto

Voorwaarden en/of vereisten

Eisen aan de leeftijd
Voor deze woning geldt een minimale, of maximale leeftijd
Minimaal 65 jaar (Verplicht)
Woningkenmerken
Berging intern
Gelijkvloers
Open keuken
Tuin
Verwarming & energie
Elektrisch koken
CV combiketel
Extra’s
Thermostatische douchekraan

Beschrijving

Advertentie
Advertentienummer: 2025110408
Methode Toewijzen: Zoekrecht
Verwachte verhuurdatum: 17 december 2025
Reageren t/m: 10 november 2025
Corporatie:
Details
Betreft: Seniorenwoning
Type woning: Seniorenwoning
Energielabel: Energieklasse D
Kosten
Huurprijs (netto): € 651,13
Servicekosten: € 22,34
Huurprijs (bruto): € 673,47
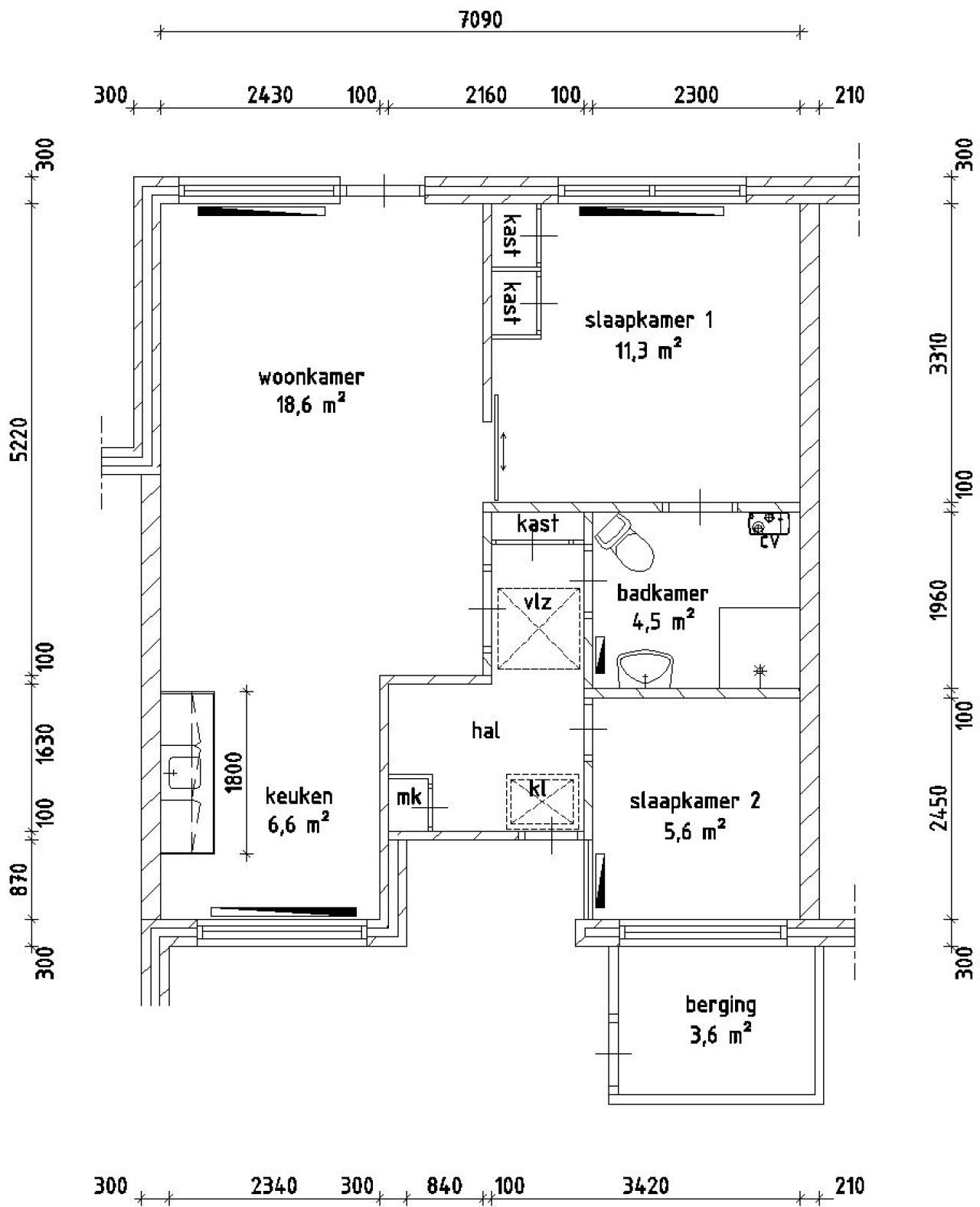
Indeling
Slaapkamer-1: 11.30 m2
Slaapkamer-2: 5.60 m2
Woonkamer-1: 18.60 m2
Keuken-1: 6.60 m2
Badkamer-1: 4.50 m2
Berging-1: 3.60 m2

Totale oppervlakte: 50.20 m2


Elektrisch koken van toepassing: koken met gas niet mogelijk.


Indien u in aanmerking komt voor een huurwoning heeft u een inkomensverklaring nodig van de belastingdienst van uzelf en indien van toepassing van uw partner over het jaar 2023/2024 of een definitieve of voorlopig aanslagbiljet over het jaar 2023/2024. Om teleurstelling bij toewijzing te voorkomen adviseren wij u in verband met de levertijd nu al deze inkomensverklaring aan te vragen bij de belastingdienst tel. 0800-0543. Bij toewijzing wordt geen uitstel verleend voor het aanvragen van een inkomensverklaring.


 
 
REAGEREN
U moet eerst inloggen om te kunnen reageren. Heeft u nog geen account?
Schrijf u dan snel in.