Login

 
Eengezinswoning
Jacob Beenstraat 35, Den Helder
Huurprijs: € 903,80 per maand
Overgebleven tijd om te reageren
3 dagen
Aantal reacties
96
Uw positie
Onbekend
Type
Eengezinswoning
Slaapkamers
3
Bouwjaar
1950
Oppervlakte
93.2 m2
housePhoto
housePhoto
housePhoto
housePhoto
Woningkenmerken
Berging extern
Tuin
Verwarming & energie
Elektrisch koken
Zonnepanelen
CV combiketel
Extra’s
Thermostatische douchekraan
Vlizotrap naar bergzolder

Beschrijving

Advertentie
Advertentienummer: 2025112412
Methode Toewijzen: Zoekrecht
Verwachte verhuurdatum: 01 december 2025
Reageren t/m: 30 november 2025
Corporatie:
Details
Betreft: Eengezinswoning
Type woning: Eengezinswoning
Energielabel: Energieklasse A
Kosten
Huurprijs (netto): € 895,99
Servicekosten: € 7,81
Huurprijs (bruto): € 903,80
Indeling
Slaapkamer-1: 15.40 m2
Slaapkamer-2: 8.80 m2
Woonkamer-1: 28.00 m2
Keuken-1: 9.20 m2
Badkamer-1: 3.20 m2
Berging-1: 8.00 m2
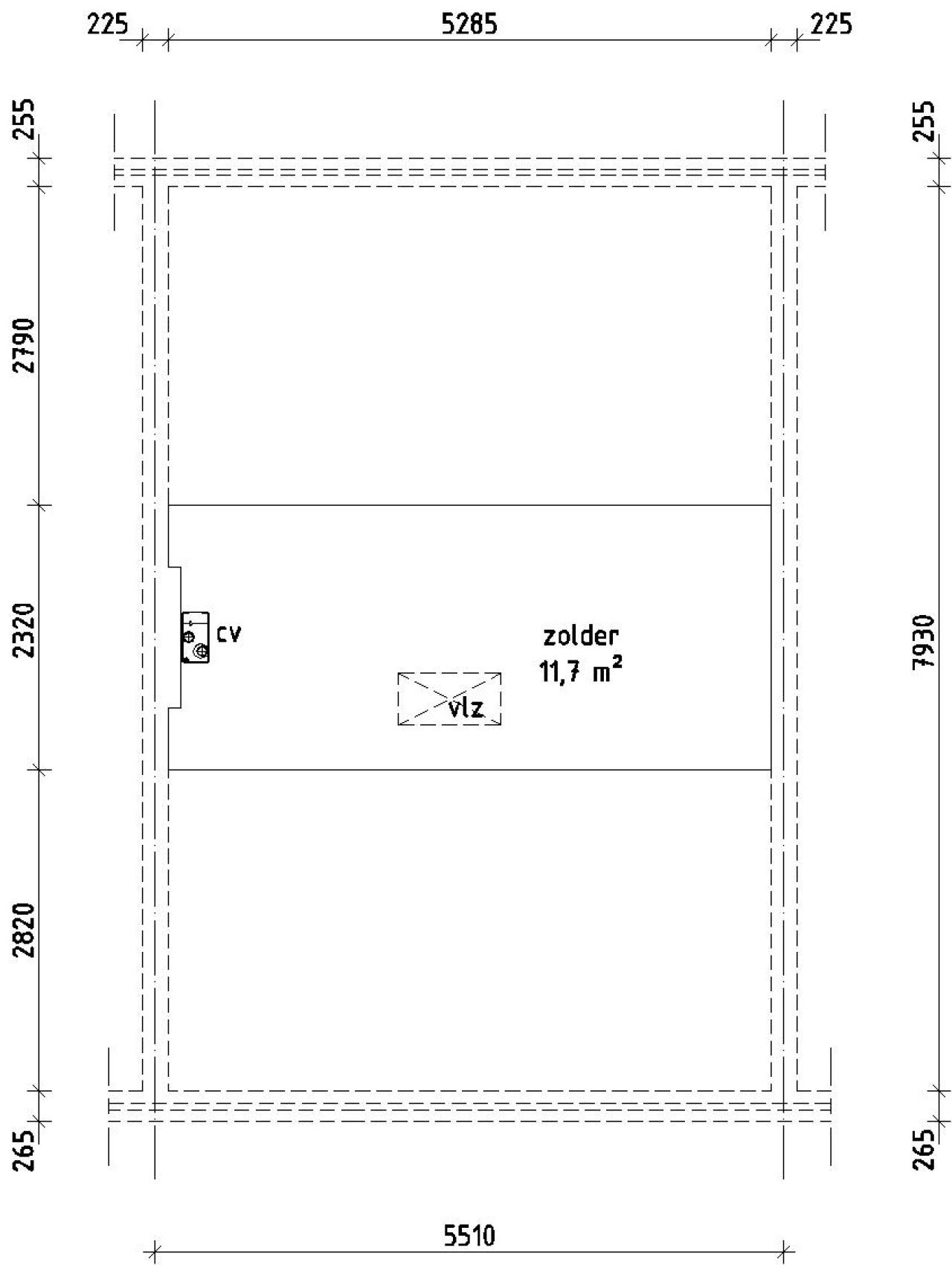
Zolder-1: 11.70 m2
Slaapkamer-3: 8.90 m2

Totale oppervlakte: 93.20 m2


Elektrisch koken

Elektrisch koken van toepassing: koken met gas niet mogelijk.


Zonnepanelen

Deze woning is voorzien van zonnepanelen.


Aanvragen Inkomensverklaring

Indien u in aanmerking komt voor een huurwoning heeft u een inkomensverklaring nodig van de Belastingdienst van uzelf en indien van toepassing van uw partner over het jaar 2024/2025 of een definitieve of voorlopig aanslagbiljet over het jaar 2024/2025.

Om teleurstelling bij toewijzing te voorkomen adviseren wij u in verband met de levertijd nu al deze inkomensverklaring aan te vragen bij de Belastingdienst tel. 0800-0543. Bij toewijzing wordt geen uitstel verleend voor het aanvragen van een inkomensverklaring.


 
 
REAGEREN
U moet eerst inloggen om te kunnen reageren. Heeft u nog geen account?
Schrijf u dan snel in.