Login

 
Appartement 3e Etage
Duinroosstraat 261, Den Helder
Huurprijs: € 682,81 per maand
Overgebleven tijd om te reageren
5 dagen
Aantal reacties
40
Uw positie
Onbekend
Type
Appartement 3e Etage
Slaapkamers
2
Bouwjaar
1962
Oppervlakte
57.9 m2
housePhoto
housePhoto
Woningkenmerken
Balkon
Berging extern
Verwarming & energie
Elektrisch koken
Zonnepanelen
CV combiketel
Extra’s
Videofoon
Thermostatische douchekraan

Beschrijving

Advertentie
Advertentienummer: 2025101310
Methode Toewijzen: Zoekrecht
Verwachte verhuurdatum: 07 november 2025
Reageren t/m: 19 oktober 2025
Corporatie:
Details
Betreft: Appartement 3e Etage
Type woning: Appartement 3e Etage
Energielabel: Energieklasse A
Kosten
Huurprijs (netto): € 652,77
Servicekosten: € 30,04
Huurprijs (bruto): € 682,81
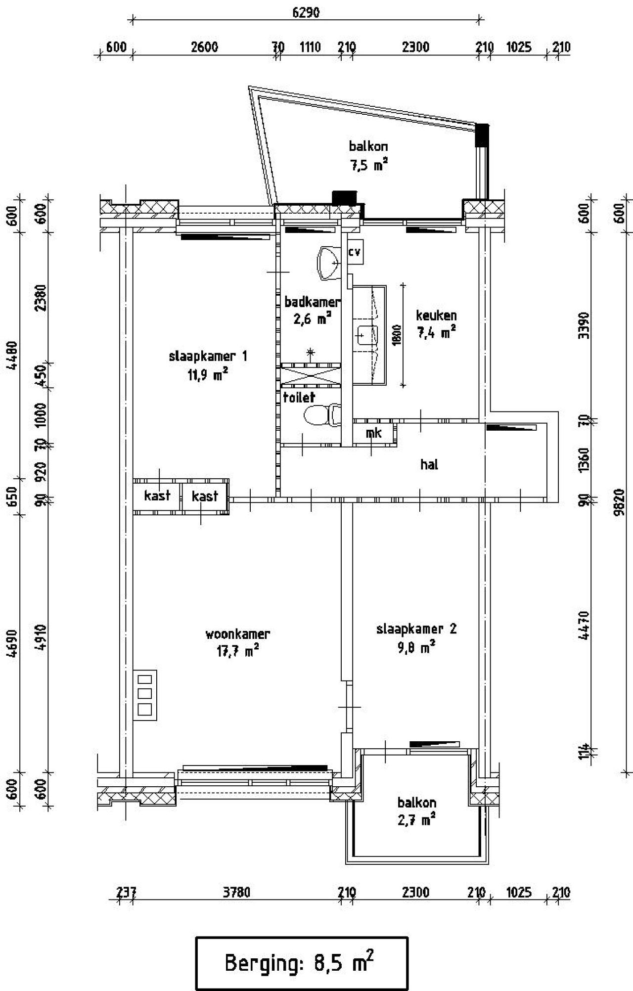
Indeling
Slaapkamer-1: 11.90 m2
Slaapkamer-2: 9.80 m2
Woonkamer-1: 17.70 m2
Keuken-1: 7.40 m2
Badkamer-1: 2.60 m2
Berging-1: 8.50 m2

Totale oppervlakte: 57.90 m2


Deze woning is voorzien van zonnepanelen.


Elektrisch koken van toepassing: koken met gas niet mogelijk.


Indien u in aanmerking komt voor een huurwoning heeft u een inkomensverklaring nodig van de belastingdienst van uzelf en indien van toepassing van uw partner over het jaar 2023/2024 of een definitieve of voorlopig aanslagbiljet over het jaar 2023/2024. Om teleurstelling bij toewijzing te voorkomen adviseren wij u in verband met de levertijd nu al deze inkomensverklaring aan te vragen bij de belastingdienst tel. 0800-0543. Bij toewijzing wordt geen uitstel verleend voor het aanvragen van een inkomensverklaring.


 
 
REAGEREN
U moet eerst inloggen om te kunnen reageren. Heeft u nog geen account?
Schrijf u dan snel in.