Login

 
Seniorenwoning
Landbouwstraat 65, Julianadorp
Huurprijs: € 739,74 per maand
Overgebleven tijd om te reageren
5 dagen
Aantal reacties
3
Uw positie
Onbekend
Type
Seniorenwoning
Slaapkamers
1
Bouwjaar
1990
Oppervlakte
59.5 m2
housePhoto
housePhoto

Voorwaarden en/of vereisten

Eisen aan de leeftijd
Voor deze woning geldt een minimale, of maximale leeftijd
Minimaal 65 jaar (Verplicht)
Woningkenmerken
Berging intern
Gelijkvloers
Open keuken
Tuin
Verwarming & energie
Elektrisch koken
Zonnepanelen
CV combiketel
Extra’s
Thermostatische douchekraan
Vrijhangend toilet

Beschrijving

Advertentie
Advertentienummer: 2025101311
Methode Toewijzen: Zoekrecht
Verwachte verhuurdatum: 18 november 2025
Reageren t/m: 19 oktober 2025
Corporatie:
Details
Betreft: Seniorenwoning
Type woning: Seniorenwoning
Energielabel: Energieklasse B
Kosten
Huurprijs (netto): € 731,93
Servicekosten: € 7,81
Huurprijs (bruto): € 739,74
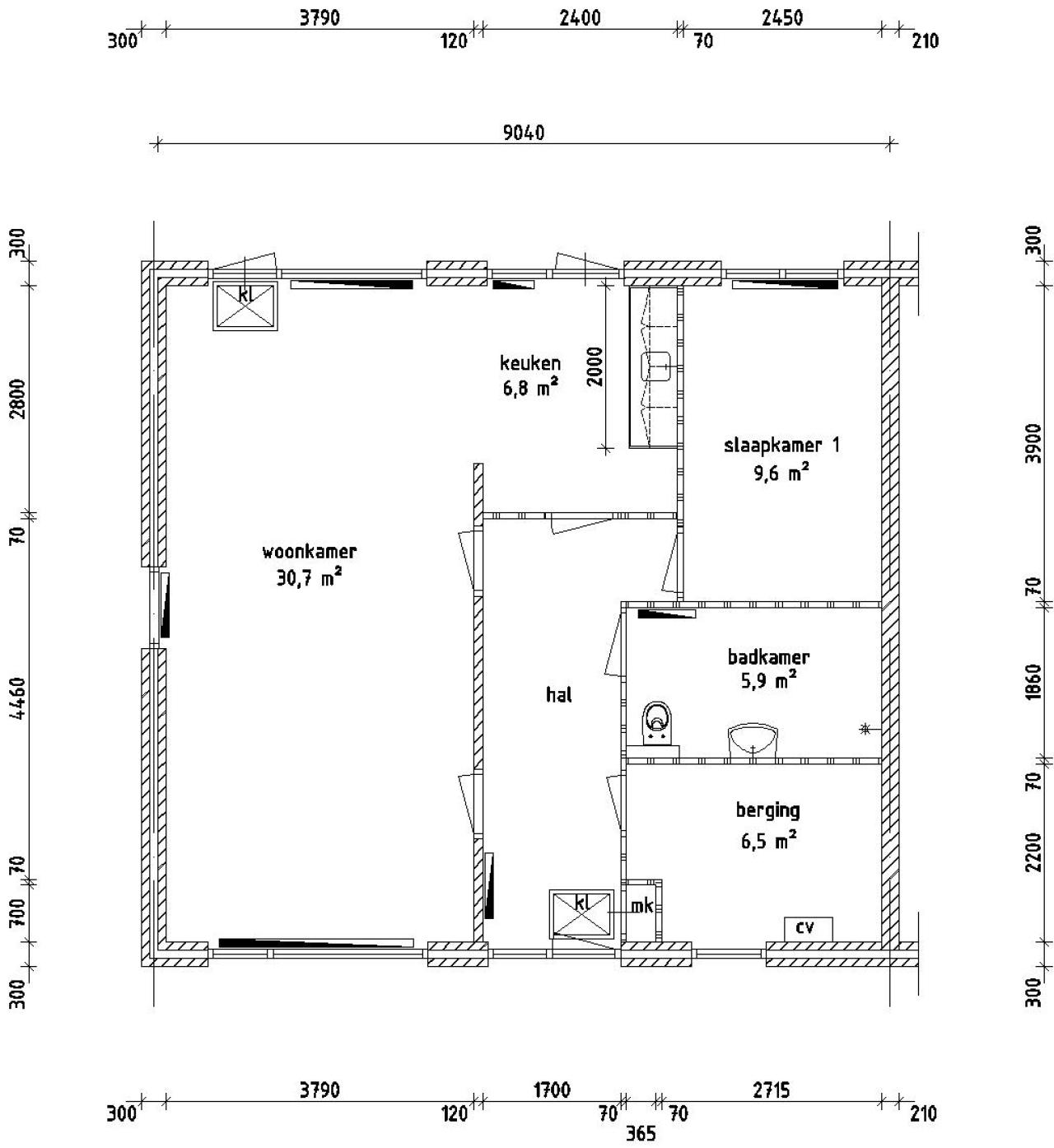
Indeling
Slaapkamer-1: 9.60 m2
Woonkamer-1: 30.70 m2
Keuken-1: 6.80 m2
Badkamer-1: 5.90 m2
Berging-1: 6.50 m2

Totale oppervlakte: 59.50 m2


Deze woning is voorzien van zonnepanelen.


Elektrisch koken van toepassing: koken met gas niet mogelijk.


Indien u in aanmerking komt voor een huurwoning heeft u een inkomensverklaring nodig van de belastingdienst van uzelf en indien van toepassing van uw partner over het jaar 2023/2024 of een definitieve of voorlopig aanslagbiljet over het jaar 2023/2024. Om teleurstelling bij toewijzing te voorkomen adviseren wij u in verband met de levertijd nu al deze inkomensverklaring aan te vragen bij de belastingdienst tel. 0800-0543. Bij toewijzing wordt geen uitstel verleend voor het aanvragen van een inkomensverklaring.


 
 
REAGEREN
U moet eerst inloggen om te kunnen reageren. Heeft u nog geen account?
Schrijf u dan snel in.