Login

 
Appartement 1e Etage
Waddenzeestraat 204, Den Helder
Huurprijs: € 683,01 per maand
Overgebleven tijd om te reageren
3 dagen
Aantal reacties
109
Uw positie
Onbekend
Type
Appartement 1e Etage
Slaapkamers
2
Bouwjaar
1958
Oppervlakte
63.1 m2
housePhoto
housePhoto
Woningkenmerken
Balkon
Berging extern
Verwarming & energie
Elektrisch koken
CV combiketel
Extra’s
Videofoon
Thermostatische douchekraan

Beschrijving

Advertentie
Advertentienummer: 2025112415
Methode Toewijzen: Zoekrecht
Verwachte verhuurdatum: 29 december 2025
Reageren t/m: 30 november 2025
Corporatie:
Details
Betreft: Appartement 1e Etage
Type woning: Appartement 1e Etage
Energielabel: Energieklasse A
Kosten
Huurprijs (netto): € 652,77
Servicekosten: € 30,24
Huurprijs (bruto): € 683,01
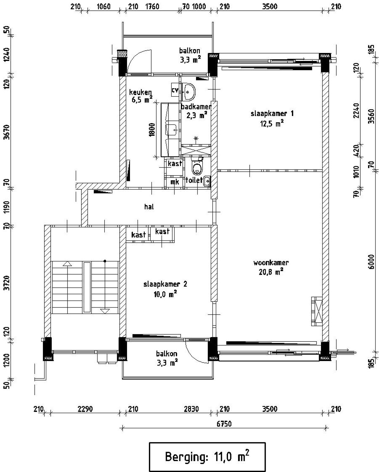
Indeling
Slaapkamer-1: 12.50 m2
Slaapkamer-2: 10.00 m2
Woonkamer-1: 20.80 m2
Keuken-1: 6.50 m2
Badkamer-1: 2.30 m2
Berging-1: 11.00 m2

Totale oppervlakte: 63.10 m2


Elektrisch koken 

Elektrisch koken van toepassing: koken met gas niet mogelijk.

Korting mogelijk

Jongeren van 18 t/m 22 jaar kunnen indien zij qua inkomen in aanmerking kunnen komen voor huurtoeslag een tijdelijke korting krijgen op de huurprijs.

Vanaf 1 januari 2026 kunnen jongeren van 18 t/m 20 jaar indien zij qua inkomen in aanmerking komen voor huurtoeslag een tijdelijke korting krijgen op de huurprijs.

Met leefregels
Bij de toewijzing van deze woning dient u akkoord te gaan met de opgestelde leefregels.


Aanvragen inkomensverklaring

Indien u in aanmerking komt voor een huurwoning heeft u een inkomensverklaring nodig van de Belastingdienst van uzelf en indien van toepassing van uw partner over het jaar 2024/2025 of een definitieve of voorlopig aanslagbiljet over het jaar 2024/2025.

Om teleurstelling bij toewijzing te voorkomen adviseren wij u in verband met de levertijd nu al deze inkomensverklaring aan te vragen bij de Belastingdienst tel. 0800-0543. Bij toewijzing wordt geen uitstel verleend voor het aanvragen van een inkomensverklaring.


 
 
REAGEREN
U moet eerst inloggen om te kunnen reageren. Heeft u nog geen account?
Schrijf u dan snel in.